Quy mô dự án Căn hộ Essensia Hà Nội

Essensia là khu căn hộ nằm trong Khu đô thị Mailand Hanoi City, tên gọi mới của Splendora Bắc An Khánh. Căn hộ Essensia có tổng diện tích đất là 2,5 ha với mật độ xây dựng 25%.

Quy mô của căn hộ Essensia bao gồm 4 tòa tháp từ CH101 đến CH104, cụ thể tòa CH101 và CH102 cao 21 tầng, CH103 và Ch104 cao 22 tầng. Essensia có 496 căn hộ từ 2 – 4 phòng ngủ, riêng có căn 5 phòng ngủ là penhouse với diện tích các căn hộ đa dạng từ 82,91 – 172,24 m2.


Mặt bằng căn hộ B1, B2 và C


Mặt bằng căn hộ D và E


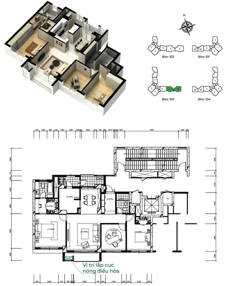
Mặt bằng căn hộ F và G
Căn hộ Essensia sở hữu hệ thống tiện ích cộng đồng như: sân chơi trẻ em, vườn hoa, sân thể thao & BBQ, library & study hub, phòng gym, trường mầm non quốc tế, trường quốc tế Mỹ St Paul, trường Edison, phố đi bộ, bể bơi bốn mùa…

Thông tin dự án Căn hộ Essensia Hà Nội
Chủ đầu tư dự án Căn hộ Essensia là Công ty Liên doanh TNHH Phát triển Đô thị mới An khánh (thuộc Công ty cổ phần Địa ốc Phú Long), đơn vị phát triện dự án Công ty cổ phần Địa ốc Phú Long, nhà thầu chính Công ty Posco (Hàn Quốc ), đơn vị tư vấn thiết kế Posco E&C ( Phong cách Hàn Quốc ).
Công ty Liên doanh TNHH Phát triển Đô thị mới An khánh được thành lập ngày 02/10/2008, đặt trụ sở tại Km10+600, đại lộ Thăng Long, xã An Khánh, huyện Hoài Đức, thành phố Hà Nội.
Doanh nghiệp có tổng vốn điều lệ khoảng 780 tỷ đồng theo thông báo thay đổi từ ngày 15/01/2021, do ông Nguyễn Quang Trung (SN 1972) làm người đại diện. Hoạt động chủ yếu trong các lĩnh vực như: kinh doanh bất động sản, tư vấn môi giới bất động sản, xây dựng các công trình.
Dự án căn hộ Essensia được ra mắt thị trường vào tháng 03/2022 với mức giá tham khaot từ 42 triêu đồng/m2.
Thông tin nhanh dự án Căn hộ Essensia Hà Nội
| Dự án: Căn hộ Essensia Hà Nội | Tổng diện tích: 2,5 ha |
| Vị trí: Đại lộ thăng long, xã An khánh, huyện Hoài Đức, thành phố Hà Nội | Tổng vốn đầu tư: |
| Loại hình: Căn hộ | Năm khởi công: |
| Chủ đầu tư: Công ty Liên doanh TNHH Phát triển Đô thị mới An khánh | Năm hoàn thành: |
Mạnh Dũng