Căn hộ Sunshine Green Iconic Hà Nội

Quy mô dự án căn hộ Sunshine Green Iconic Long Biên Phối cảnh tổng thể dự án Sunshine Green Iconic Dự án được xây dựng trên khu đất có diện tích 16.700 m2 với m

Căn hộ Sunshine Green Iconic Hà Nội Căn hộ Sunshine Green Iconic Hà Nội

Thông số kỹ thuật

  • Vị trí: Đang cập nhật
  • Khu vực: Đang cập nhật
  • Chủ đầu tư: Đang cập nhật
  • Loại hình: Đang cập nhật
  • Giá tham khảo: Liên hệ

Tiện ích nổi bật

  • • Hệ tiện ích nội khu đồng bộ
  • • Kết nối giao thông thuận tiện
  • • Tiềm năng gia tăng giá trị bền vững
  • • Chính sách bán hàng linh hoạt

Chi tiết dự án

Quy mô dự án căn hộ Sunshine Green Iconic Long Biên

Quy mô dự án căn hộ Sunshine Green Iconic Long Biên

Phối cảnh tổng thể dự án Sunshine Green Iconic

Dự án được xây dựng trên khu đất có diện tích 16.700 m2 với mật độ xây dựng 31%, tổng diện tích sàn xây dựng là 177.404 m2. Dự án có quy mô bao gồm 4 khối tháp với tên gọi: A, B, C, D, mỗi tháp có chiều cao 15 tầng gồm 2 tầng hầm, 2 tầng đế và còn lại là các tầng căn hộ. Tổng vốn đầu tư của dự án dự kiến khoảng 8.800 tỷ đồng.

Dự án căn hộ Sunshine Green Iconic Long Biên

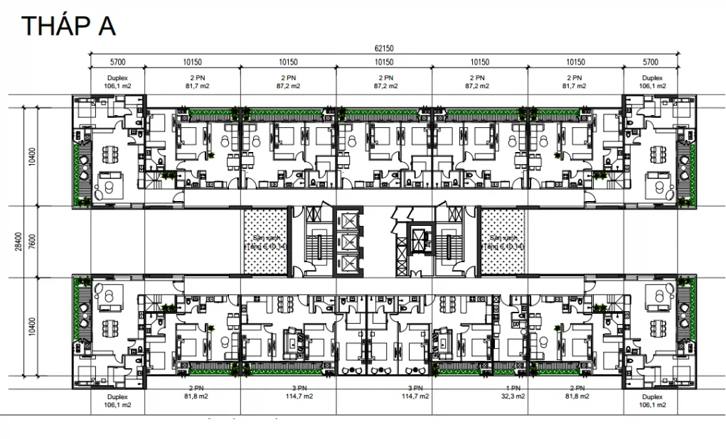
Tháp A có diện tích sàn 1.607,8 m2 với mật độ căn hộ 14 căn/tầng, trong đó gồm 1 căn 1 phòng ngủ, 7 căn 2 phòng ngủ, 2 căn 3 phòng ngủ và 4 căn duplex.

Tháp A dự án căn hộ Sunshine Green Iconic Long Biên

Tháp B-C-D có diện tích sàn 1.217,3 m2 với mật độ căn hộ 10 căn/tầng, trong đó gồm 1 căn 1 phòng ngủ, 4 căn 2 phòng ngủ, 1 căn 3 phòng ngủ và 4 căn duplex.

Tháp B C D dự án căn hộ Sunshine Green Iconic Long Biên

Tổng số lượng căn hộ tại dự án là 384 căn, trong đó có 360 căn hộ và 24 căn penhouse diện tích từ 32,3 m2 – 348 m2. Mỗi căn được thiết kế từ 1 – 3 phòng ngủ và duplex, kết hợp với kiến trúc xanh mặt đứng và các khu vườn nhỏ.

Tiện ích dự án căn hộ Sunshine Green Iconic Long Biên

Tiện ích nội khu tại dự án bao gồm: trường mầm non quốc tế Sunshine Maple Bear, hồ điều hòa trung tâm, sân gofl mini rooftop, sky villas, vườn thiền, vườn nướng ngoài trời, vườn Nhật trên mái, khu thể thao, khu chăm sóc sức khỏe, bể bơi và các khu vực ảnh quan nội khu.

Khuôn viên dự án căn hộ Sunshine Green Iconic Long Biên

Sunshine Green Iconic có vị trí thuận tiện di chuyển ra tuyến đường AH 17, từ đó kết nối đến các khu vực khác như: trung tâm Thủ đô Hà Nội, Aeon Mall Long Biên, sân golf Long Biên,…

Thông tin

Sunshine Green Iconic có chủ đầu tư là Công ty Cổ phần Sunshine Homes, thành viên của Sunshine Group. Tổng thầu xây dựng chính của dự án là Công ty Cổ phần Xây dựng Hòa Bình.

Sunshine Group được thành lập vào ngày 13/04/2016, hoạt động chính trong lĩnh vực kinh doanh bất động sản. Từ số vốn điều lệ ban đầu 300 tỷ đồng, đến ngày 31/08/2018, Sunshine Group đã tăng số vốn điều lệ lên 8.500 tỷ đồng.

Ngoài dự án căn hộ Sunshine Green iconic Long Biên, Sunshine Group còn là chủ đầu tư thực hiện các dự án khác như: Sunshine Garden, Sunshine Riverside, Sunshine City Sài Gòn, Sunshine City Hà Nội, Sunshine Golden River…

Sunshine Green Iconic nằm trong tổng thể dự án Khu đô thị Công viên Công nghệ phần mềm có quy mô 413 ha với quy mô dân số dự kiến 39.500 người. Dự án được UBND thành phố Hà Nội phê duyệt quy hoạch chi tiết 1/500 tại quyết định số 3834/QĐ-UBND vào năm 2010.

Giá bán căn hộ tham khảo trên thị trường của dự án Sunshine Green Iconic từ 35 triệu đồng/m2.

Thông tin nhanh dự án căn hộ Sunshine Green Iconic Long Biên

Dự án: Sunshine Green Iconic    

Tổng diện tích: 16.700 m2

Vị trí: Đường Nguyễn Lam, phường Phúc Đồng, quận Long Biên, Hà Nội          

Tổng vốn đầu tư: 8.800 tỷ đồng  

Loại hình: Căn hộ 

Ngày khởi công: Năm 2020

Chủ đầu tư: Công ty Cổ phần Sunshine Homes 

Năm hoàn thành: Năm 2023

Đăng ký tư vấn