Quy mô dự án Epic Tower Hà Nội

Dự án Epic Tower có tổng diện tích đất 5.527 m2, trong đó diện tích đất xây dựng 2.200 m2 với mật độ xây dựng 40%. Dự án được thiết kế theo mô hình tòa tháp căn hộ và văn phòng, sở hữu 2 tòa tháp A và B chung tầng khối đế.


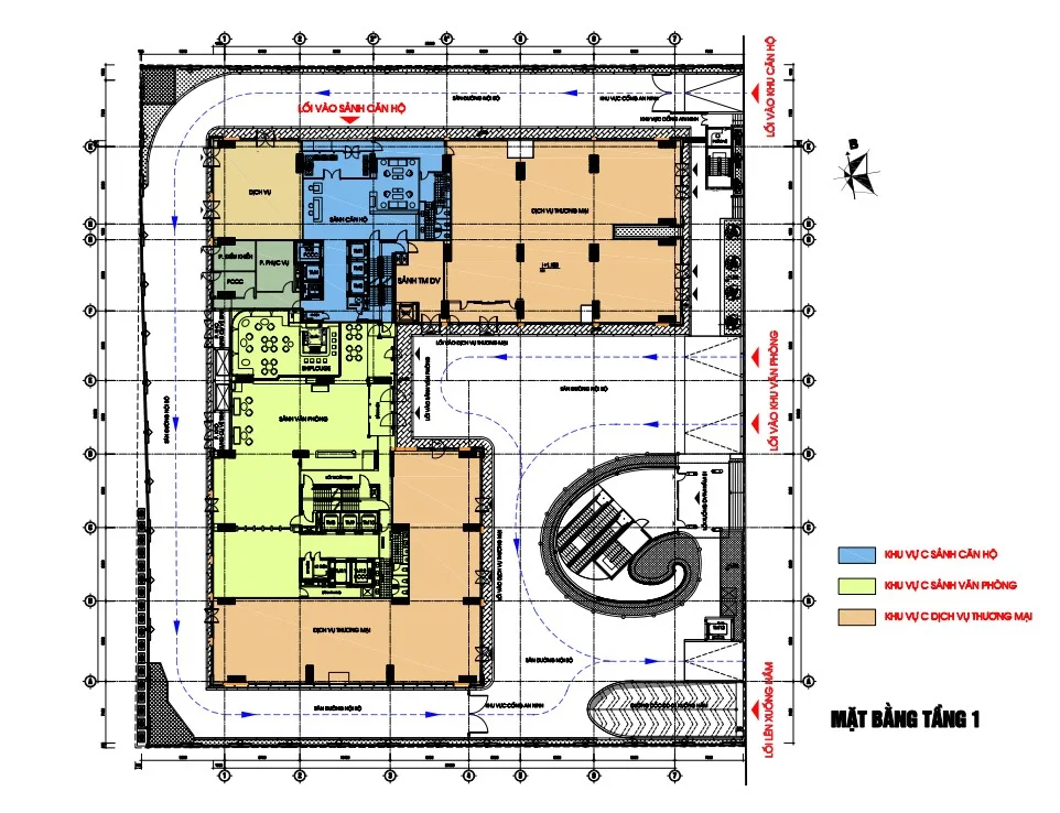
Tầng khối đế tại dự án Epic Tower
Tháp căn hộ dịch vụ (tháp A): sở hữu chiều cao 30 tầng nổi và 3 tầng hầm, cung cấp ra thị trường 308 căn hộ có diện tích từ 68,5 – 121 m2.


Mặt bằng căn hộ tại tòa tháp A
Tháp văn phòng (tháp B): có chiều cao 30 tầng nổi và 3 tầng hầm, cung cấp ra 245 văn phòng thương mại.


Mặt bằng tòa tháp văn phòng tháp B
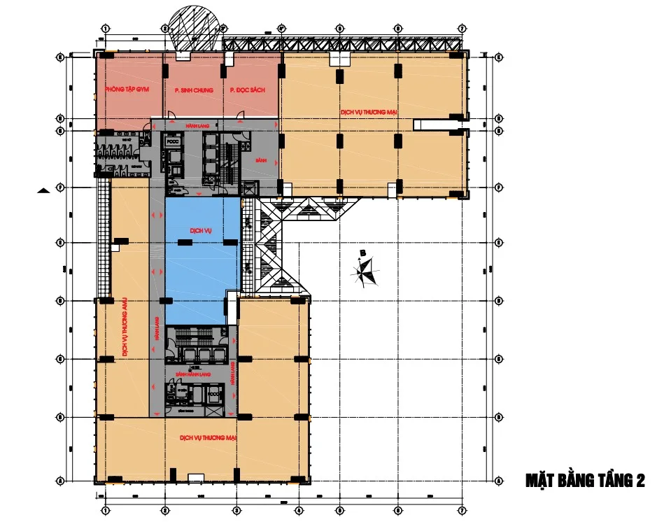
Dự án Epic Tower sở hữu các tiện ích nội khu nổi bật cho cư dân như: tại tầng 1 bao gồm khu vực lễ tân, sảnh đón khách, khu coffee, khu bar tại; tầng 2 với nhà hàng Á – Âu, khu vui chơi trẻ em, phòng golf mô phỏng, phòng hội nghị; cùng các tiện ích chung như hồ bơi nước nóng 300 m2, cigar lounge, phòng gym, phòng yoga…




Phối cảnh tiện ích tại Epic Tower
Từ Epic Tower thuận tiện để đến các khu vui chơi giải trí như các sân tập Golf Phương Đông và các sân golf như: Vân Trì, Đồng Mô, Skylake và các khu nghỉ dưỡng cuối tuần như Hạ Long, Cát Bà, Đại Lại…
Thông tin dự án Epic Tower Hà Nội
Chủ đầu tư dự án Epic Tower Hà Nội là Công ty cổ phần EcoLand, đơn vị quản lý vận hành dự án Colliers International (Canada).
Công ty cổ phần EcoLand được thành lập ngày 12/02/2014, đặt trụ sở tại tầng 1, tòa nhà số 19 phố Duy Tân, phường Mỹ Đình 2, quận Nam Từ Liêm, thành phố Hà Nội.
Theo tìm hiểu dự án Epic Tower có tên pháp lý là Dự án Nhà ở cao tầng văn phòng lưu trú, căn hộ du lịch và dịch vụ thương mại Eco Park View. Dự án có vị trí tại lô đất D14, Khu đô thị mới Cầu Giấy, được xây dựng trên diện tích 5.527 m2 với diện tích sàn nhà ở thương mại 34.384 m2 và tổng vốn đầu tư 1.123 tỷ đồng.
Tại công văn số 3389/UBND-ĐT ngày 08/6/2016, Ủy ban nhân dân Thành phố Hà Nội chấp thuận chủ trương thực hiện Dự án Nhà ở cao tầng kết hợp dịch vụ thương mại Eco Park View tại một phần lô đất D14, Khu đô thị mới Cầu Giấy.
Theo đó, liên danh Công ty Cổ phần Thiết bị y tế Medinsco, Công ty Cổ phần Xây dựng và Phát triển Cơ sở Hạ tầng, Công ty Cổ phần Ecoland (Công ty Cổ phần Ecoland là đại diện liên danh) là chủ đầu tư của dự án.
Dự án được Sở Quy hoạch - Kiến trúc thành phố Hà Nội cấp giấy phép quy hoạch số 970/GPQH ngày 24/02/2017 với các chỉ tiêu quy hoạch, kiến trúc chính như sau: diện tích đất khoảng 5.503 m2; chức năng hỗn hợp (văn phòng, dịch vụ thương mại và nhà ở); mật độ xây dựng tối đa 40%; tầng cao tối đa 30 tầng; quy mô dân số khoảng 700 người.
Dự án Epic Tower hiện đã được xây dựng hoàn thiện, các sản phẩm căn hộ tại dự án có mức giá bán từ 80,9 triệu đồng/m2 và văn phòng cho thuê có mức giá từ 22 – 24 $/m2.
Thông tin nhanh dự án Epic Tower Hà Nội
| Dự án: Epic Tower Hà Nội | Tổng diện tích: 5.527 m2 |
| Vị trí: Số 19 Duy Tân, phường Dịch Vọng Hậu, quận Cầu Giấy, Hà Nội | Tổng vốn đầu tư: 1.123 tỷ đồng |
| Loại hình: Căn hộ, văn phòng | Năm khởi công: |
| Chủ đầu tư: Công ty cổ phần EcoLand | Năm hoàn thành: |
Mạnh Dũng