Quy mô dự án Felicity Uông Bí

Dự án Felicity Uông Bí có tổng diện tích quy hoạch 20,5 ha. Trong đó: Đất ở 69.749 m2; đất cây xanh 21.312 m2; đất công cộng 11.682 m2; đất hạ tầng, kè, trạm xử lý nước thải 96.752 m2; đất dịch vụ 6.019 m2.

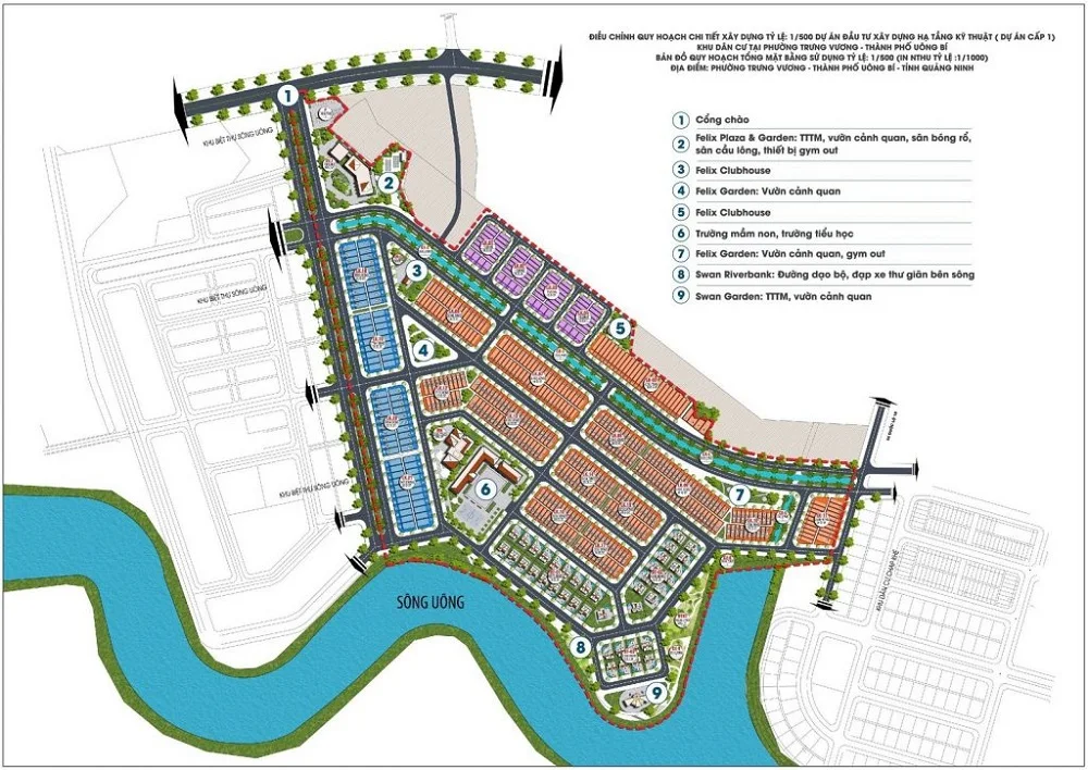
Mặt bằng dự án Felicity Uông Bí
Felicity Uông Bí cung cấp ra thị trường 579 sản phẩm phân lô bao gồm biệt thự và liền kề. Trong đó các sản phẩm liền kề có diện tích trung bình từ 80 - 150 m2 và các sản phẩm biệt thự có diện tích lên đến 300 m2.


Phối cảnh sản phẩm tại dự án Felicity Uông Bí
Tại dự án Felicity Uông Bí, cư dân có thể sở hữu hệ thống tiện ích nội khu đầy đủ với các hạng mục như: Hệ thống cổng chào dự án, trung tâm thương mại, vườn cảnh quan, sân thể thao – gym ngoài trời, hệ thống clubhouse, vườn cảnh quan, trường mầm non, trường tiểu học, đường dạo bộ, đường đạp xe thư giãn ven sông…


Phối cảnh tại dự án Felicity Uông Bí
Bên cạnh đó, từ dự án còn có thể tiếp cận được hệ thống tiện ích ngoại khu trong vùng như: Cách UBND phường Trưng Vương và ĐH Trần Hưng Đạo 650 m, cách cầu sông Uông 1,1 km. cách THCS Trần Quốc Toản 2 km, cách trung tâm y tế thành phố Uông Bí 2,5 km, cách phố đi bộ thành phố Uông Bí 3,5 km, cách hệ thống bệnh viện Việt Nam – Thụy Điển 5 km…
Pháp lý dự án Felicity Uông Bí
Ngày 26/08/2016, UBND tỉnh Quảnh Ninh ra quyết định số 2770/QĐ-UBND về việc phê duyệt dự án đầu tư xây dựng hạ tầng (dự án cấp 1) Khu dân cư tại phường Trưng Vương, thành phố Uông Bí.
Ngày 13/09/2018, UBND tỉnh Quảng Ninh ra quyết định số 3602/QĐ-UBND về việc phê duyệt báo cáo đánh giá tác động môi trường dự án đầu tư xây dựng hạ tầng (dự án cấp 1) Khu dân cư tại phường Trưng Vương, thành phố Uông Bí, tỉnh Quảng Ninh của Công ty Cổ phần Đầu tư Thương mại Công Thành.
Ngày 30/09/2022, UBND tỉnh Quảng Ninh ra văn bản giấy phép môi trường số 2834/GPMT-UBND.
Thông tin dự án Felicity Uông Bí
Chủ đầu tư dự án Felicity Uông Bí là Công ty Cổ phần Đầu tư Thương mại Công Thành, được thành lập ngày 09/05/2009, đặt trụ sở tại số nhà 231 - 233, đường Trần Nhân Tông, phường Yên Thanh, thành phố Uông Bí, tỉnh Quảng Ninh.
Được biết dự án Felicity Uông Bí có tên pháp lý là dự án đầu tư xây dựng hạ tầng kỹ thuật (dự án cấp 1) khu dân cư tại phường Trưng Vương, thành phố Uông Bí, tỉnh Quảng Ninh.
Dự án được phê duyệt điều chỉnh quy hoạch chi tiết xây dựng tỷ lệ 1/500 tại văn bản số 4784/QĐ-UBND ngày 12/11/2014; phê duyệt điều chỉnh cục bộ quy hoạch chi tiết xây dựng tỷ lệ 1/500 tại văn bản số 5115/QĐ-UBND ngày 19/08/2020; phê duyệt điều chỉnh cục bộ quy hoạch chi tiết xây dựng tỷ lệ 1/500 (dự án cấp I) tại văn bản số 155/QĐ-UBND ngày 14/01/2021.
Thông tin nhanh dự án Felicity Uông Bí
| Dự án: Felicity Uông Bí | Tổng diện tích: 20,5 ha |
| Vị trí: Quốc lộ 18, phường Trưng Vương, thành phố Uông Bí, tỉnh Quảng Ninh | Tổng vốn đầu tư: |
| Loại hình: Liền kề, biệt thự | Năm khởi công: |
| Chủ đầu tư: Công ty Cổ phần Đầu tư Thương mại Công Thành | Năm hoàn thành: |
Mạnh Dũng