Chi tiết dự án
Quy mô dự án Galia Hanoi

Phối cảnh dự án Galia Hanoi
| Tổng diện tích | 6.088m2 |
| Mật độ xây dựng | 35% |
| Quy mô xây dựng | 1 tòa tháp gồm - 33 tầng nổi - 3 tầng hầm |
| Số lượng sản phẩm | 798 căn hộ |
| Tổng vốn đầu tư | 2.550 tỷ đồng |
Quy mô dự án Galia Hanoi
Sản phẩm dự án Galia Hanoi

Mặt bằng tầng điển hình dự án Galia Hanoi
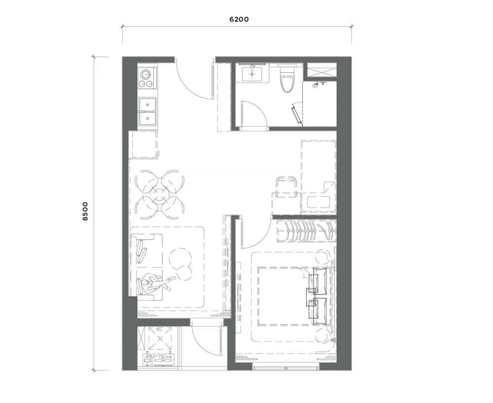
Căn 1 phòng ngủ
Diện tích: 43,6-46,58m2

Layout thiết kế căn hộ 1 phòng ngủ dự án Galia Hanoi
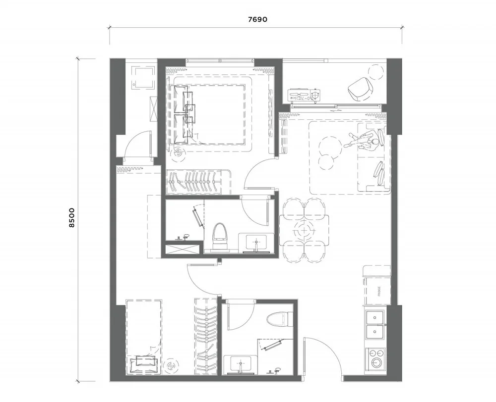
Căn hộ 2 phòng ngủ
Diện tích: 54,1-68,86m2

Layout thiết kế căn hộ 2 phòng ngủ dự án Galia Hanoi
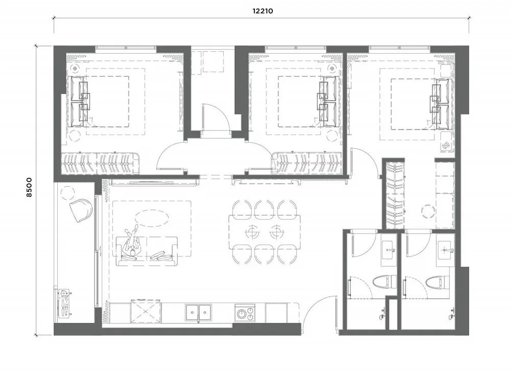
Căn 3 phòng ngủ
Diện tích: 89,96-100,7m2

Layout thiết kế căn hộ 3 phòng ngủ dự án Galia Hanoi
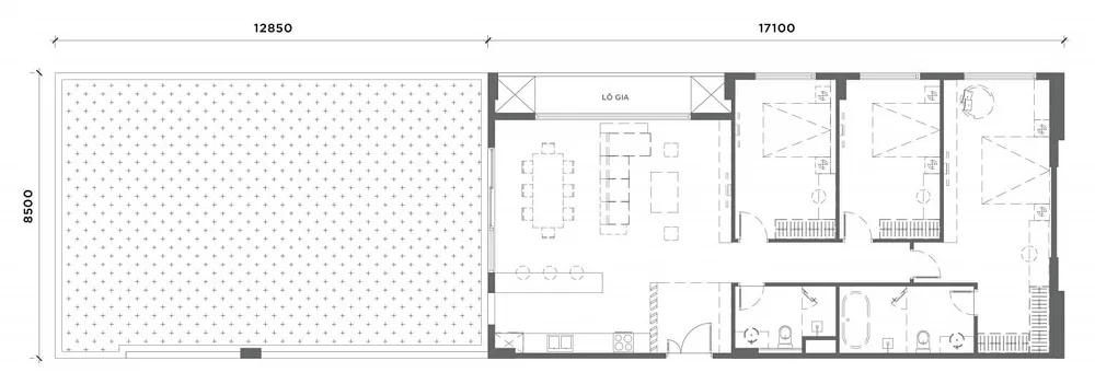
Căn Penthouse
Diện tích: 132,4-145,5m2

Layout thiết kế căn Penthouse dự án Galia Hanoi
![]() | ![]() |
![]() | ![]() |
Thiết kế căn hộ mẫu dự án Galia Hanoi
Phương thức thanh toán dự án Galia Hanoi
- Đặt cọc 200 triệu
- Đợt 1: Thanh toán 30% Ngay sau khi ký HĐMB
- Đợt 2: Thanh toán 50% Sau 60 ngày kể từ ngày ký HĐMB
- Đợt 3: Thanh toán 5% Sau 120 ngày kể từ ngày ký HĐMB
- Đợt 4: Thanh toán 5% Sau 180 ngày kể từ ngày ký HĐMB
- Đợt 6: Thanh toán 5% Sau 240 ngày kể từ ngày ký HĐMB
- Đợt 7: Thanh toán 5% Sau 300 ngày kể từ ngày ký HĐMB
- Đợt 8: Thanh toán 10% Sau 360 ngày kể từ ngày ký HĐMB
- Đợt 9: Thanh toán 25% Khi nhận được thông báo bàn giao căn hộ và đóng 2% kinh phí bảo trì
- Đợt 10: Thanh toán 5% Chậm nhất 07 ngày sau khi nhận được Thông báo bàn giao Giấy chứng nhận quyền sở hữu nhà
Chính sách bán hàng dự án Galia Hanoi
Chính sách ưu đãi
- Chiết khấu 2% cho khách hàng đặt chỗ sớm
- Chiết khấu 1% nếu không nhận bảo lãnh ngân hàng
- Chiết khấu 2% theo chính sách đặc biệt (áp dụng có điều kiện)
- Miễn phí 2 năm phí dịch vụ
- Miễn phí sử dụng bể bơi trọn đời
Chính sách thanh toán
- Thanh toán theo tiến độ: Chiết khấu 4%
- Thanh toán sớm 50%: Chiết khấu 4% 6% = 10%
- Thanh toán sớm 95%: Chiết khấu 4% 10% = 14%
Phương án hỗ trợ lãi suất
- Vay 70% trong vòng 24 tháng
- Chỉ cần vốn tự có 20%
Tiện ích dự án Galia Hanoi

Mặt bằng tiện ích dự án Galia Hanoi
- Vườn trẻ và khu thể thao ngoài trời
- Quảng trường nước nghệ thuật
- Trung tâm thương mại
- Galia Fitness
- Golf 3D trong nhà
- Rạp chiếu phim Galia
- Bể bơi người lớn, trẻ em
- Đài thiên văn
- Vườn ẩm thực chân mây…


Phối cảnh tiện ích dự án Galia Hanoi
Pháp lý dự án Galia Hanoi
Galia Hanoi có tên pháp lý là Khu nhà ở kinh doanh Đầm Liễng, phường Yên Sở, quận Hoàng Mai, Hà Nội.
Ngày 21/9/2011, UBND TP.Hà Nội có Văn bản số 8057/UBND-KH&ĐT chấp thuận cho Công ty Cổ phần Đầu tư và Phát triển Tân Á Đại Thành làm chủ đầu tư dự án.
Tiến độ dự án Galia Hanoi
Dự án chính thức được khởi công từ ngày 09/06/2025, hiện đang chuẩn bị thi công phần móng.


Tiến độ dự án Galia Hanoi cập nhật tháng 6/2025
Thông tin chủ đầu tư dự án Galia Hanoi
Dự án Galia Hanoi được đầu tư bởi Công ty cổ phần Đầu tư và Phát triển Tân Á Đại Thành và đơn vị phát triển là Công ty Cổ phần Kinh doanh Bất động sản Meyland.
Công ty cổ phần Đầu tư và Phát triển Tân Á Đại Thành hoạt động chính thức từ ngày 25/04/2007 với trụ sở chính đặt tại số 124 phố Tôn Đức Thắng, phường Văn Miếu- Quốc Tử Giám, quận Đống Đa, TP.Hà Nội.
Thông tin nhanh dự án Galia Hanoi
| Dự án: Galia Hanoi | Tổng diện tích: 6.088m2 |
| Vị trí: mặt tiền đường Đỗ Mười, phường Yên Sở, quận Đống Đa, TP.Hà Nội | Tổng vốn đầu tư: 2.550 tỷ đồng |
| Loại hình: Căn hộ chung cư | Năm khởi công: 09/06/2025 |
| Chủ đầu tư: Công ty cổ phần Đầu tư và Phát triển Tân Á Đại Thành | Năm hoàn thành: |



