Chi tiết dự án
Quy mô dự án khu biệt thự An Vượng Villas Hà Nội

Phối cảnh tiểu khu biệt thự An Vượng Villas Hà Nội buổi đêm
Tiểu khu An Vượng Villa gồm 475 căn biệt thự, diện tích mỗi căn khoảng 159 – 394m2, mật độ xây dựng 60%, có thiết kế 3 tầng 1 tum với pháp lý hoàn thiện.

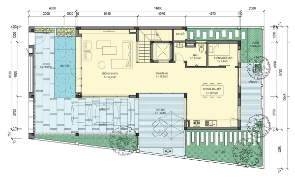
Mặt bằng tầng điển hình (tầng 1) căn biệt thự tiểu khu An Vượng Villas
Mỗi căn biệt thự An Vượng đều có 1 sân thượng, tối thiểu 3 phòng ngủ, 1 gara để xe, 1 sân sau (với bàn trà, tiểu cảnh, khu vực BBQ, sân phơi), 1 phòng giúp việc, 1 phòng khách, 1 phòng ăn, 1 sân thượng, 1 phòng thờ, 1 phòng đa năng, 1 thang máy và 1 thang bộ.

Phối cảnh công viên thiên văn học trong KĐT Dương Nội rộng 12ha

Phối cảnh nhà hành chính KĐT Dương Nội
Bên cạnh công trình nhà ở và khu thương mại, các tiện ích khác cũng được phát triển đồng bộ trong khu đô thị Dương Nội nhằm đem lại sự tiện lợi cho cư dân sinh sống tại tiểu khu An Vượng Villas như công viên Thiên Văn Học rộng 12ha với hồ Bách Hợp Thủy 6ha, quảng trường, bệnh viện quốc tế, trung tâm thương mại, vườn tuổi thơ, bể bơi 4 mùa,...

Phối cảnh phòng khách có tầm nhìn hướng hồ của nhà mẫu tiểu khu An Vượng Villas
Thông tin từ CafeLand
Tập đoàn Nam Cường vừa mở bán các lô biệt thự An Vượng Villas trong khu đô thị Dương Nội hôm 26/05 vừa qua.
Được biết, giá bán mỗi căn biệt thự tiểu khu An Vượng Villas từ 7 – 20 tỉ đồng/lô. Căn mặt hồ từ 14 tỉ đồng trở lên/căn. Còn các căn mặt đường Ngô Thì Nhậm kéo dài đến Aeon Mall Hà Đông giá bán nhỉnh hơn, 15 tỉ đồng/căn.
Thông tin nhanh dự án An Vượng Villas
|
Dự án: An Vượng Villas |
Tổng diện tích: |
|
Vị trí: Đường Tố Hữu, xã Dương Nội, quận Hà Đông, Hà Nội |
Tổng vốn đầu tư: |
|
Loại hình: Biệt thự |
Ngày khởi công: |
|
Chủ đầu tư: Tập đoàn Nam Cường |
Năm hoàn thành: |