Chi tiết dự án
Quy mô dự án khu đô thị Harbor Bay Ha Long

Phối cảnh tổng thể dự án Harbor Bay Ha Long
Với quy mô dự án rộng khoảng 13,7ha, Harbor Bay Ha Long được quy hoạch thành khu đô thị có mật độ xây dựng chỉ chiếm 23%, tương ứng diện tích xây dựng 29.574m2, cung ứng 375 căn nhà phố với mặt tiền 6,5m, cao 5 tầng.

Mặt bằng tổng thể dự án Harbor Bay Ha Long
Mỗi lô đất được thiết kế thành nhà ở kết hợp kinh doanh với diện tích dao động từ 74,75 – 360,93m2, trong đó diện tích xây dựng 61,75 – 170m2, tổng diện tích sàn 325,7 – 917,75m2. Chủ đầu tư cam kết bàn giao nhà hoàn thiện mặt ngoài, thô bên trong, không có tường ngăn và không bao gồm nội thất.

Mặt bằng tầng 1 mẫu nhà điển hình dự án Harbor Bay Ha Long

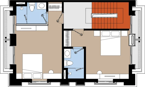
Mặt bằng tầng 2, 3, 4 mẫu nhà điển hình dự án Harbor Bay Ha Long
Tại khu đô thị Harbor Ha Long, du khách nghỉ dưỡng có thể tận dụng các tiện ích ngoại khu để vui chơi, giải trí, thư giãn như hệ thống bể bơi, khu BBQ, khu vui chơi trẻ em, khu hoạt động thể thao, nhà hàng trên biển, khu ăn uống ngoài trời, gian hàng ki-ot cùng các tiện ích liên khu khác như bãi biển Marina bay, quảng trường biển, tuyến phố đi bộ Marina Square,…

Phối cảnh hồ bơi nội khu dự án Harbor Bay Ha Long

Phối cảnh quảng trường trung tâm khu đô thị Harbor Bay Ha Long
Thông tin từ CafeLand
Dưới sự đầu tư từ Tập đoàn BIM Group, mỗi căn nhà phố vừa để ở vừa kết hợp kinh doanh của dự án Harbor Bay Ha Long có mức giá dự kiến từ 5,2 tỉ đồng/căn 12 phòng ngủ.
Khu đô thị Halong Marina được đầu tư bởi Công ty Cổ phần Đầu tư Phát triển Syrena Việt Nam (Tập doàn BIM Group). Dự án được bắt đầu triển khai từ năm 2010 với tổng mức vốn đầu tư gần 2 tỉ USD.
Dự kiến phân khu Harbor Bay sẽ hoàn thành thi công vào năm 2021.
Thông tin nhanh dự án Harbor Bay Ha Long
|
Dự án: Harbor Bay Ha Long |
Tổng diện tích: 13,7ha |
|
Vị trí: Bán đảo 2 Hạ Long Marina, phường Bãi Cháy, TP. Hạ Long, tỉnh Quảng Ninh |
Tổng vốn đầu tư: |
|
Loại hình: Nhà phố |
Ngày khởi công: |
|
Chủ đầu tư: Tập doàn BIM Group |
Năm hoàn thành: Năm 2021 |