Chi tiết dự án
Quy mô dự án Vinhomes Ocean Park Gia Lâm

Vinhomes Ocean Park với quy mô rộng khoảng 4.203.699 m2 (hơn 420 ha), mật độ xây dựng khoảng 18,8%. Trong đó, diện tích xây dựng là 789.975 m2, diện tích dành cho cây xanh, công viên, mặt nước khoảng 117 ha, trong đó diện tích dành cho biển hồ nước mặn là 6,1 ha và diện tích dành cho hồ điều hòa trung tâm là 24,5 ha.
Tổng diện tích sàn xây dựng của dự án khu đô thị Vinhomes Ocean Park là 6.975.987 m2.

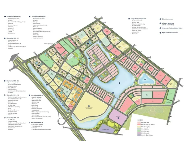
Mặt bằng tổng thể dự án khu đô thị Vinhomes Ocean Park
Dự án Vinhomes Ocean Park được chia làm 2 phân khu: phân khu cao tầng và phân khu thấp tầng.

Phân khu cao tầng được chia gồm 3 phân khu Sapphire, Ruby và Diamond gồm 66 tòa có chiều cao 23 -26 tầng, với các diện tích căn hộ từ 35 - 85m2, được thiết kế từ 1 - 3 phòng ngủ.

Phân khu thấp tầng được chia làm 4 phân khu Hải Âu, Ngọc Trai, San Hô và Sao Biển bao gồm 2.390 căn biệt thự với các loại hình biệt thự liền kề (diện tích 90 – 130 m2), biệt thự nhà vườn (diện tích trung bình khoảng 168 m2), biệt thự song lập (diện tích từ 180 – 250 m2), biệt thự đơn lập (diện tích từ 250 – 450 m2) và shophouse (diện tích từ 170 - 300 m2).
Thông tin dự án Vinhomes Ocean Park
Dự án khu đô thị Vinhomes Ocean Park (Khu đô thị Gia Lâm) được Công ty TNHH Đầu Tư và Phát triển Đô thị Gia Lâm (Gia Lâm Urban) đầu tư với tổng số vốn 87.385 tỷ đồng. Nhà thầu thi công là Công ty Cổ phần Xây dựng Coteccons. Dự án được chính thức khởi công từ tháng 11/2018 và dự kiến hoàn thành trong quý IV/2024.
Được biết, Gia Lâm Urban thành lập vào năm 2013, chuyên hoạt động trong lĩnh vực đầu tư, xây dựng và kinh doanh bất động sản. Tập đoàn Vingroup hiện đang nắm giữ 85% tỷ lệ biểu quyết và 61,67% tỷ lệ lợi ích tại doanh nghiệp này.
Giá bán căn hộ được tham khảo tại dự án Vinhomes Ocean Park Gia Lâm từ 28 – 40 triệu/m2 (đã gồm VAT và phí bảo trì).
Ngày 07/06/2018, UBND thành phố Hà Nội đã ký ban hành Quyết định số 2783/QĐ-UBND về việc phê duyệt Quy hoạch chi tiết Khu đô thị Gia Lâm (tên thương mại Vinhomes Ocean Park), tỷ lệ 1/500 tại khu vực thị trấn Trâu Quỳ và các xã: Dương Xá, Kiêu Kỵ, Đa Tốn - huyện Gia Lâm, thành phố Hà Nội.
Tuy nhiên đến thời điểm tháng 06/2019, công ty Gia Lâm không còn là chủ đầu tư duy nhất tại dự án Vinhomes Ocean Park. Cụ thể như sau:
|
Ngày 24/06/2019, UBND thành phố Hà Nội đã ban hành Quyết định số 3377/QĐ-UBND về việc cho phép Công ty TNHH Đầu Tư và Phát triển Đô thị Gia Lâm chuyển nhượng một phần dự án Khu đô thị Gia Lâm (Vinhomes Ocean Park) cho Công ty TNHH MTV Tư vấn và Kinh doanh Bất động sản TCO, với quy mô của phần dự án chuyển nhượng như sau: Phần diện tích đất 346.257 m2 (theo Giấy chứng nhận quyền sử dụng đất số CR 002712 ngày 22/3/2019), bao gồm: đất ở biệt thự, đất ở nhà vườn, đất ở liền kề, đất nhà ở thương mại dịch vụ kết hợp ở. Tổng mức đầu tư của phần dự án chuyển nhượng (tạm tính theo số liệu của chủ đầu tư) khoảng: 11.287 tỷ đồng. Vốn tự có của chủ đầu tư: 1.693,05 tỷ đồng (chiếm 15% tổng mức đầu tư phần dự án chuyển nhượng). Vốn vay, vốn huy động hợp pháp khác: 9.593,95 tỷ đồng (chiếm 85% tổng mức đầu tư phần dự án chuyển nhượng). |
|
Ngày 14/08/2019, UBND thành phố Hà Nội đã ban hành Quyết định số 4342/QĐ-UBND về việc cho phép Công ty TNHH Đầu Tư và Phát triển Đô thị Gia Lâm chuyển nhượng một phần dự án Khu đô thị Gia Lâm (Vinhomes Ocean Park) cho Công ty TNHH Bất động sản Minh Tân Hà Nội, với quy mô của phần dự án chuyển nhượng như sau: Bao gồm lô đất B3-CT03 diện tích đất 18.826 m2 (theo Giấy chứng nhận quyền sử dụng đất số CR887096 ngày 13/6/2019) và lô đất B3-CT06 diện tích đất 18.699 m2 (theo Giấy chứng nhận quyền sử dụng đất số CR887097 ngày 13/6/2019). Tổng mức đầu tư của phần dự án chuyển nhượng (tạm tính theo số liệu của chủ đầu tư) khoảng 4.833,79 tỷ đồng. Vốn tự có của chủ đầu tư: 1.012,6 tỷ đồng. Vốn vay, vốn huy động hợp pháp khác: 3.821,19 tỷ đồng. |
Cả TCO và Minh Tân Hà Nội đều là những pháp nhân mới trên thị trường. TCO thành lập tháng 06/2018; Còn Minh Tân Hà Nội thành lập vào tháng 05/2019.
Tuy nhiên, về TCO, chủ sở hữu của doanh nghiệp này hiện đăng ký vốn điều lệ ở mức 2.000 tỷ đồng này là Công ty Cổ phần Đầu tư TCO Việt Nam (TCO Development). Còn về Minh Tân Hà Nội, do Công ty TNHH Đầu tư và Phát triển Đô thị Minh Tân (Minh Tan Urban LLC) là cổ đông sáng lập và cũng là công mẹ hiện đăng ký với tổng vốn điều lệ 1.201 tỷ đồng.
Thông tin nhanh dự án Vinhomes Ocean Park Gia Lâm
|
Dự án: Vinhomes Ocean Park |
Tổng diện tích: 4.203.699 m2 |
|
Vị trí: Xã Đa Tốn – Kiêu Kỵ – Dương Xá và một phần thị trấn Trâu Qùy, huyện Gia Lâm, Hà Nội |
Tổng vốn đầu tư: 87.385 tỷ |
|
Loại hình: Căn hộ, biệt thự, shophouse |
Ngày khởi công: Tháng 11/2018 |
|
Chủ đầu tư: Công ty TNHH Đầu Tư và Phát triển Đô thị Gia Lâm |
Năm hoàn thành: Quý IV/2024 |