Quy mô dự án Louis City Xuân Phương Hà Nội

Louis City Xuân Phương có tổng diện tích khoảng, được quy hoạch xây dựng với loại hình sản phẩm shophouse. Cung cấp ra thị trường 40 căn có diện tích lớn từ 216 – 223 – 320 m2.

Mặt bằng dự án Louis City Xuân Phương
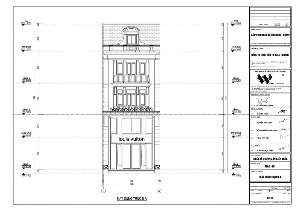
Các sản phẩm shophouse tại dự án được thiết kế với chiều cao 3 tầng, 1 tầng lửng, 1 tầng tum và tầng mái.


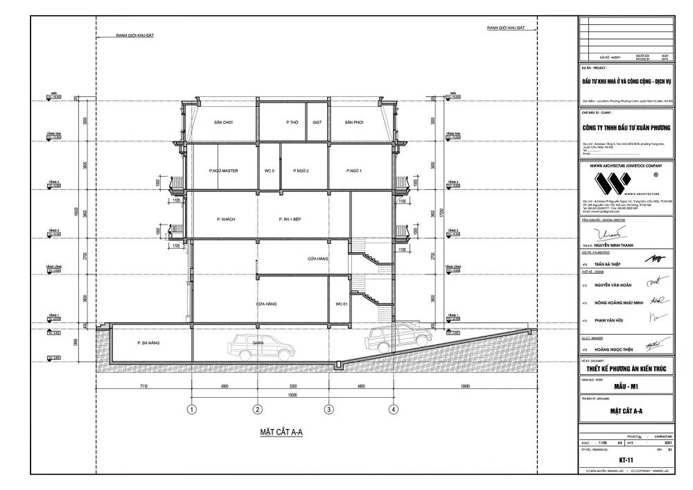
Mặt cắt các căn shophouse tại dự án Louis City Xuân Phương
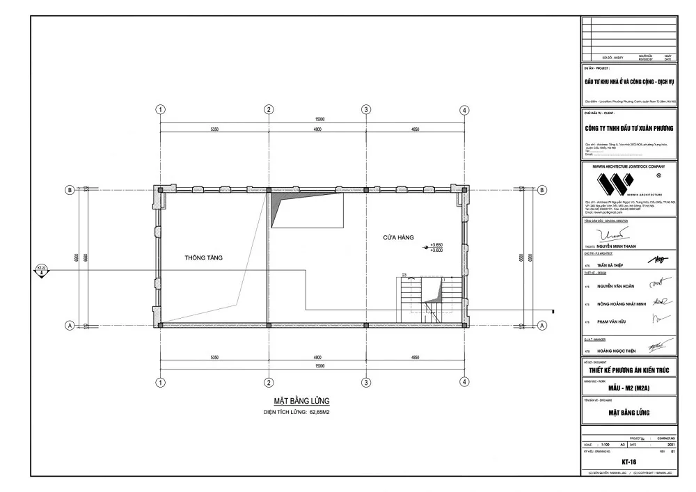
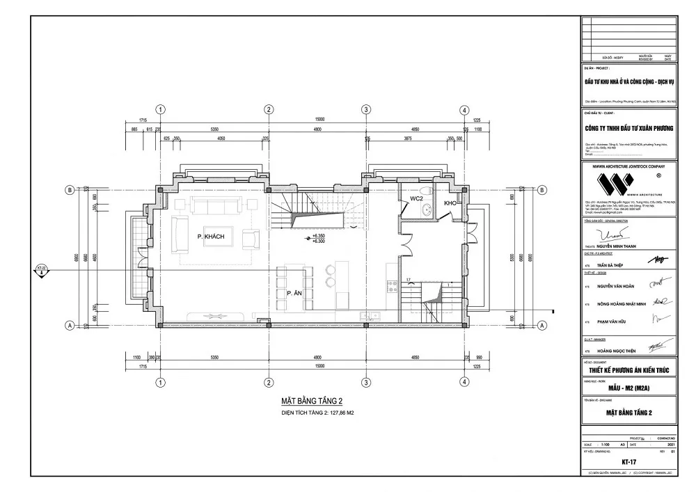
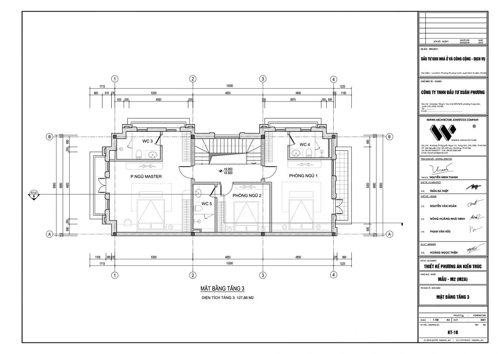
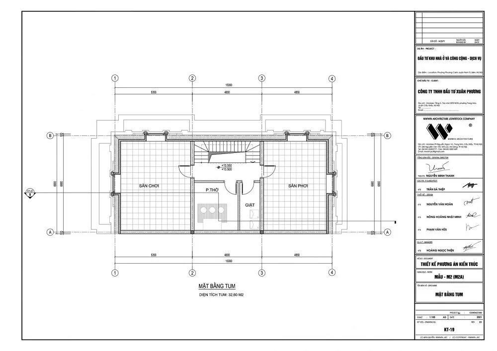
Đối với các căn shophouse mẫu M2A có tổng diện tích đất là 226,32 m2, mật độ xây dựng 56,5%, diện tích xây dựng 127,86 m2 với tổng diện tích sàn xây dựng 603,90 m2.
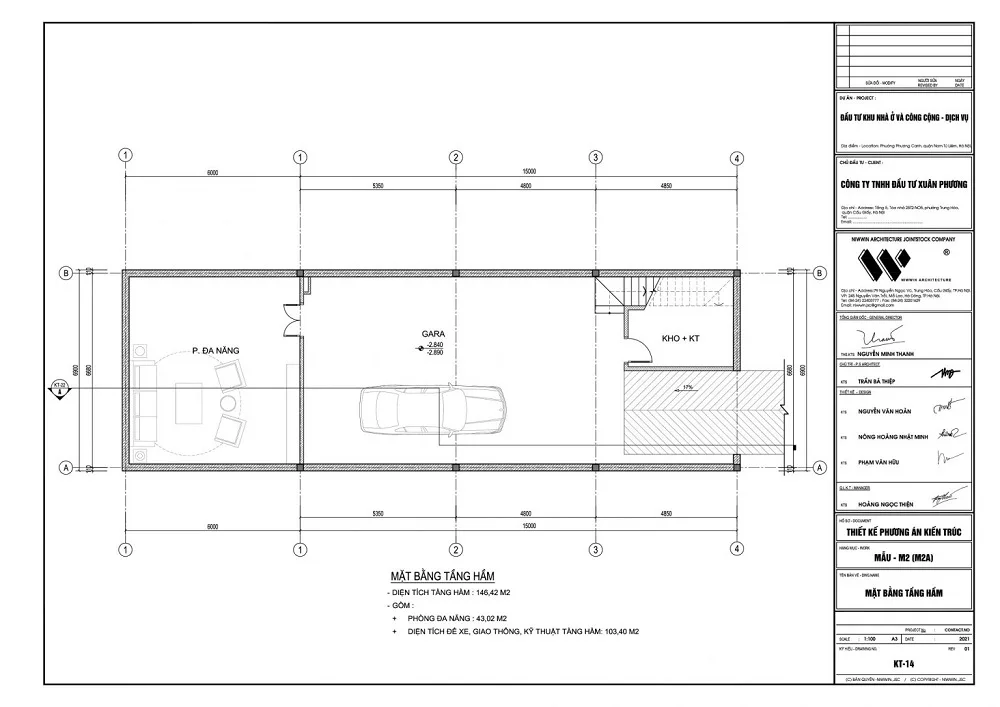
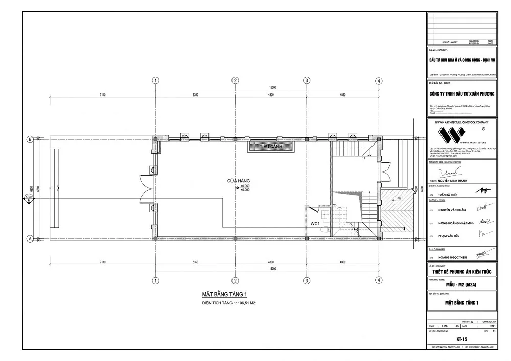
Trong đó: diện tích tầng hầm là 146,42 m2; tầng 1 là 106,51 m2; tầng lửng 62,65 m2; tầng 2 và tầng 3 là 127.86 m2; tầng tum là 32,6 m2.






Mặt bằng tầng tại dự án Louis City Xuân Phương
Từ dự án cư dân có thể tiếp cận được những tiện ích ngoại khu như: đối diện trường ĐH Công nghệ Đông Á, cách trường Cao đẳng FPT Polytechnic 1,8 km, cách trường liên cấp Korea Global School in Hanoi 2 km, cách trường TH Phương Canh 2 km, cách sân vận động Mỹ Đình 4,2 km…
Thông tin dự án Louis City Xuân Phương Hà Nội
Chủ đầu tư dự án Louis City Xuân Phương Hà Nội là Công Ty TNHH Đầu Tư Xuân Phương, được thành lập ngày 16/01/2018, đặt trụ sở tại khu Xa La, phường Phúc La, quận Hà Đông, thành phố Hà Nội.
Doanh nghiệp được đại diện bởi ông Hà Xuân Lực và hoạt động trong các lĩnh vực như: Xây dựng nhà các loại, kinh doanh bất động sản, tư vấn môi giới đấu giá bất động sản…
Dự án được khởi công trong quý 1/2022 và dự kiến hoàn thành trong năm 2023.
Thông tin nhanh dự án Louis City Xuân Phương Hà Nội
| Dự án: Louis City Xuân Phương Hà Nội | Tổng diện tích: 1,5 ha |
| Vị trí: Đường Trịnh Văn Bô, phường Phương Canh, Quận Nam Từ Liêm, Hà Nội | Tổng vốn đầu tư: |
| Loại hình: Shophouse | Năm khởi công: Quý 1/2022 |
| Đơn vị phát triển: Công Ty TNHH Đầu Tư Xuân Phương | Năm hoàn thành: Năm 2023 |
Mạnh Dũng