Quy mô dự án Nhóm nhà ở Tây Nam Mễ Trì Hà Nội

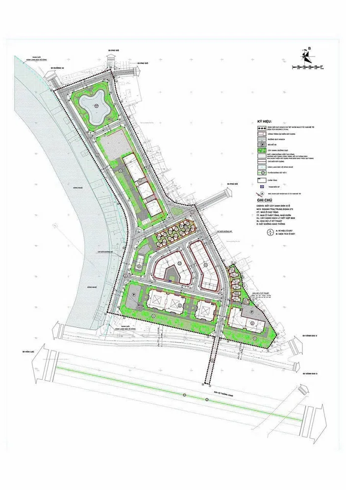
Nhóm nhà ở Tây Nam Mễ Trì có tổng diện tích quy hoạch 57.490 m2, trong đó diện tích đất xây dựng nhà ở 9.519 m2; đất đường nội bộ và hạ tầng kỹ thuật 34.036 m2; đất bàn giao cho Bộ Tư lệnh 4.788 m2; đất bàn giao cho UBND quận Nam Từ Liêm 4.002 m2; đất bàn giao cho thành phố 2.308 m2; phần còn lại dành cho bãi đỗ xe và các hạng mục công cộng khác.

Mặt bằng dự án Nhóm nhà ở Tây Nam Mễ Trì
Nhóm nhà ở Tây Nam Mễ Trì được thiết kế xây dựng với 65 căn nhà thấp tầng và 1 nhà chung cư 12 tầng nổi với 2 tầng hầm. Dự án sở hữu tuyến đường nội khu rộng 17,5 m và các tuyến đường nhánh 11,5 m và 13,5 m.


Phối cảnh sản phẩm liền kề tại dự án Nhóm nhà ở Tây Nam Mễ Trì
Từ dự án cư dân thuận tiện di chuyển đến các khu vực tiện ích ngoại khu lân cận như: Cách bệnh viện đa khoa Hồng Ngọc 700 m2, cách trường TH & THCS Phú Đô 1,4 km, cách UBND phường Phú Đô 1,8 km, cách hệ thống trung tâm thương mại The Garden 1,9 km, cách Sân vận động Quốc gia Mỹ Đình 2 km, cách hệ thống Trung tâm Hội nghị Quốc gia….
Thông tin dự án Nhóm nhà ở Tây Nam Mễ Trì Hà Nội
Chủ đầu tư dự án Nhóm nhà ở Tây Nam Mễ Trì là Công ty Cổ phần Xây dựng và Phát triển nhà DAC Hà Nội, được thành lập ngày 12/06/2007, đặt trụ sở tại số A12 khu liền kề Mỹ Đình, đường Đình Thôn, phường Mỹ Đình 1, quận Nam Từ Liêm, thành phố Hà Nội.
Dự án đã được UBND Thành phố Hà Nội phê duyệt quy hoạch chi tiết tỷ lệ 1/500 tại quyết định số 120/2005/QĐ-UB ngày 03/08/2005 và điều chỉnh cục bộ tại quyết định số 4517/QĐ-UBND ngày 22/08/2019.
Được biết dự án Nhóm nhà ở Tây Nam Mễ Trì do Công ty Cổ phần Xây dựng và Phát triển nhà DAC Hà Nội làm chủ đầu tư theo quyết định số 731/QĐ-UBND ngày 15/9/2008 và quyết định số 2504/QĐ-UBND ngày 12/10/2008 của UBND thành phố Hà Nội.
Đối với các công trình phải bàn giao: Ngày 19/10/2022, UBND Thành phố Hà Nội có Quyết định số 3929/QĐ-UBND về việc thu hồi 4.788 m2 của Công ty Cổ phần Xây dựng và Phát triển nhà DAC Hà Nội để giao cho Bộ Tư lệnh thực hiện dự án xây dựng doanh trại Đoàn 275 tại quận Nam Từ Liêm, Hà Nội.
Đối với diện tích đất cây xanh đơn vị ở ký hiệu CXĐVƠ 4.002 m2 chủ đầu tư đang liên hệ với UBND quận Nam Từ Liêm để bàn giao theo quy định.
Với quỹ đất 20% là 2.308 m2 phải bàn giao cho thành phố chủ đầu tư đang làm thủ tục xin thực hiện dự án nhà ở xã hội và đã được Bộ Xây dựng hướng dẫn tại văn bản số 2028/BXD-QLN ngày 07/06/2022.
Hiện dự án Nhóm nhà ở Tây Nam Mễ Trì đang trong quá trình xây dựng và sớm được ra mặt thị trường trong thời gian tới.
Thông tin nhanh dự án Nhóm nhà ở Tây Nam Mễ Trì Hà Nội
| Dự án: Nhóm nhà ở Tây Nam Mễ Trì | Tổng diện tích: 57.490 m2 |
| Vị trí: Đường Nguyễn Văn Giáp, phường Phú Đô, quận Nam Từ Liêm, thành phố Hà Nội | Tổng vốn đầu tư: |
| Loại hình: Nhà liền kề, chung cư | Năm khởi công: |
| Chủ đầu tư: Công ty Cổ phần Xây dựng và Phát triển nhà DAC Hà Nội | Năm hoàn thành: |
Mạnh Dũng