Chi tiết dự án
Quy mô dự án Grand Oceania - Sonasea Vân Đồn Harbor City Quảng Ninh

Phối cảnh phân khu Grand Oceania
| Tổng diện tích | 7,5ha |
| Số lượng sản phẩm | 225 nhà phố, biệt thự |
Quy mô phân khu Grand Oceania

Vị trí phân khu Grand Oceania trong dự án Sonasea Vân Đồn Harbor City

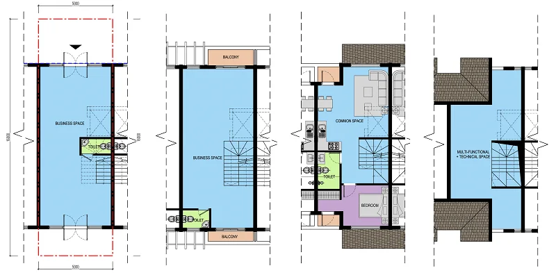
Mặt bằng phân khu Grand Oceania
Sản phẩm dự án Grand Oceania - Sonasea Vân Đồn Harbor City Quảng Ninh
Ocean Villa đơn lập
Diện tích: 144-240m2


Thiết kế Ocean Villa đơn lập
Ocean Villa đơn lập góc


Thiết kế Ocean Villa đơn lập góc
Ocean Villa song lập


Thiết kế Ocean Villa song lập
Grand Ocean Villa
Diện tích: 240-404,2m2

Thiết kế Grand Ocean Villa
Boutique shop
Diện tích: 80-105m2


Thiết kế boutique shop
Tiện ích dự án Grand Oceania - Sonasea Vân Đồn Harbor City Quảng Ninh
- Hẻm giải trí Tiki Taka Alley
- Đại lộ Grand Ocean
- Bãi đỗ xe
- Vườn cây Pua Kai Garden
- Sảnh chờ Welcome Center
- Nhà tiện ích Ocean Station
- Câu lạc bộ poker
- Lounge & bar đa phong cách
- Tháp Sonasea Lighthouse
- Khu sự kiện Grand Yard
- Poor bar
- Bể bơi trẻ em, bể bơi người lớn…


Phối cảnh tiện ích tại dự án
Pháp lý dự án Grand Oceania - Sonasea Vân Đồn Harbor City Quảng Ninh
Grand Oceania là phân khu thuộc dự án Sonasea Vân Đồn Harbor City, có tên pháp lý là dự án khu tổ hợp du lịch nghỉ dưỡng Sonasea Vân Đồn Harbor City – Phân khu 1 tại xã Hạ Long, huyện Vân Đồn.
Ngày 20/9/2019, UBND tỉnh Quảng Ninh ban hành Quyết định số 3939/QĐ-UBND về việc quyết định điều chỉnh chủ trương đầu tư dự án.
Ngày 30/6/2021, UBND tỉnh Quảng Ninh ban hành Quyết định số 171/QĐ-BQLKKTVĐ về việc phê duyệt điều chỉnh quy hoạch chi tiết xây dựng tỷ lệ 1/500.
Ngày 28/10/2022, UBND tỉnh Quảng Ninh cấp giấy phép xây dựng số 06/GPXD cho chủ đầu tư được phép xây dựng dự án.
Tiến độ dự án Grand Oceania - Sonasea Vân Đồn Harbor City Quảng Ninh
Ngày 5/2/2025, phân khu Grand Oceania chính thức được khởi công.
Cập nhật tháng 7/2025, các tuyến đường nội khu đã hình thành, tiến hành xây dựng dãy biệt thự Ocean Villa và Clubhouse.
Giá bán tham khảo:
- Boutique Shop: 6,6-9,5 tỷ đồng/căn
- Ocean Villa: 9,6-15 tỷ đồng/căn
- Grand Ocean Villa: 24-45 tỷ đồng/căn


Tiến độ dự án cập nhật tháng 7/2025
Thông tin chủ đầu tư dự án Grand Oceania - Sonasea Vân Đồn Harbor City Quảng Ninh
Chủ đầu tư dự án Grand Oceania là Công ty Cổ phần Đầu tư và Phát triển Du lịch Vân Đồn (thuộc tập đoàn CEO) hoạt động từ năm 2017, địa chỉ trụ sở là đặc khu Vân Đồn, tỉnh Quảng Ninh. Người đại diện pháp luật là ông Trần Hoàng Vũ. Doanh nghiệp hoạt động chính trong lĩnh vực kinh doanh bất động sản.
Thông tin nhanh dự án Grand Oceania - Sonasea Vân Đồn Harbor City Quảng Ninh
| Dự án: Grand Oceania | Tổng diện tích: 7,5ha |
| Vị trí: Sonasea Vân Đồn Harbor City, đường DT334, đặc khu Vân Đồn, tỉnh Quảng Ninh | Tổng vốn đầu tư: |
| Loại hình: Biệt thự, shophouse | Năm khởi công: 5/2/2025 |
| Chủ đầu tư: Công ty Cổ phần Đầu tư và Phát triển Du lịch Vân Đồn (thuộc tập đoàn CEO) | Năm hoàn thành: |