Chi tiết dự án
Quy mô dự án Platinum Long Biên Hà Nội

Phối cảnh dự án Platinum Long Biên Hà Nội
|
Tổng diện tích |
13.953m2 |
|
Diện tích xây dựng |
4.953m2 |
|
Mật độ xây dựng |
35,5% |
|
Tổng diện tích sàn (tầng nổi tầng hầm) |
104.127m2 |
|
Hệ số sử dụng đất |
5,33 lần |
|
Chiều cao công trình |
55m |
|
Quy mô xây dựng |
4 tòa cao 16 tầng 3 tầng hầm |
|
Số lượng sản phẩm |
418 căn hộ |
|
Quy mô dân số |
1.300 người |
Quy mô dự án Platinum Long Biên Hà Nội

Mặt bằng thiết kế dự án Platinum Long Biên Hà Nội
Sản phẩm dự án Platinum Long Biên Hà Nội
Căn hộ 1 phòng ngủ
Diện tích: 47–56m2

Thiết kế căn hộ 1 phòng ngủ dự án Platinum Long Biên Hà Nội
Căn hộ 2 phòng ngủ
Diện tích: 71m2

Thiết kế căn hộ 2 phòng ngủ dự án Platinum Long Biên Hà Nội
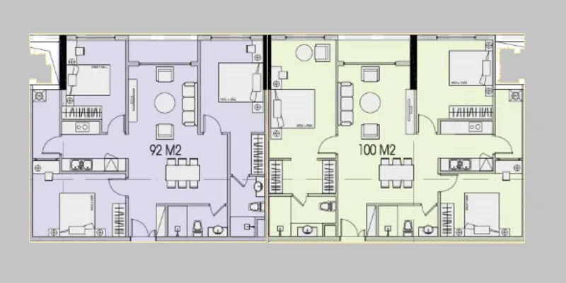
Căn hộ 3 phòng ngủ
Diện tích: 92-100m2

Thiết kế căn hộ 3 phòng ngủ dự án Platinum Long Biên Hà Nội
Căn hộ Duplex
Diện tích: 258m2

Thiết kế căn hộ Duplex dự án Platinum Long Biên Hà Nội

Thiết kế căn hộ mẫu dự án Platinum Long Biên
Tiện ích dự án Platinum Long Biên Hà Nội
- Bể bơi bốn mùa
- Coffee tầng thượng SKybar dự án
- Khu vui chơi trẻ em
- Trung tâm thương mại tầng trệt
- Khu nhà hàng
- Phòng tập Gym, Spa cao cấp
- Khu thể thao ngoài trời
- Vườn thiền trên không
- Công viên nội khu kết hợp đi bộ


Phối cảnh tiện ích dự án Platinum Long Biên Hà Nội
Pháp lý dự án Platinum Long Biên Hà Nội
Dự án Platinum Long Biên (tên cũ: Eco Smart City, East Hà Nội Skyline) có tên pháp lý là Khu nhà ở phục vụ dự án giải phóng mặt bằng và san nền sơ bộ khu đất để đấu giá quyền sử dụng đất tại phường Long Biên - quận Long Biên tại ô đất ký hiệu CT2.
Ngày 4/9/2024, UBND TP.Hà Nội ban hành Quyết định số 4631/QĐ-UBND về việc Phê duyệt Điều chỉnh cục bộ Quy hoạch chi tiết tỷ lệ 1/500 Cải tạo và xây dựng mới Khu nhà ở phục vụ dự án giải phóng mặt bằng và san nền sơ bộ khu đất để đấu giá quyền sử dụng đất tại phường Long Biên - quận Long Biên tại ô đất ký hiệu CT2.
Ngày 22/7/2025, UBND TP.Hà Nội ban hành Quyết định số 3875/QĐ-UBND về việc cho Công ty TNHH Thương mại và Xây dựng Delux Hà Nội thuê 9.000m2 đất tại phường Long Biên để thực hiện Dự án đầu tư xây dựng nhà ở cao tầng để bán tại ô đất ký hiệu CT2 thuộc dự án xây dựng hạ tầng kỹ thuật khu đất đấu giá quyền sử dụng đất tại phường Long Biên, TP.Hà Nội.
Tiến độ dự án Platinum Long Biên Hà Nội
Cập nhật tháng 5/2025, dự án đang thi công tầng 6 và tầng 7 toà A và toà B. 2 toà C và toà D hiện đang thi công tầng 10 đến 12.
Giá bán dự kiến: từ 120 triệu đồng/m2.


Tiến độ dự án Platinum Long Biên cập nhật tháng 5/2025
Thông tin chủ đầu tư dự án Platinum Long Biên Hà Nội
Chủ đầu tư dự án Platinum Long Biên là Công ty Cổ phần Đầu tư phát triển Nhà Thăng Long - Việt Nam (thuộc Việt Anh Group) hoạt động từ năm 2013, địa chỉ trụ sở đặt tại số 5, ngõ 144, đường Ngô Gia Tự, phường Việt Hưng, quận Long Biên, TP. Hà Nội (nay là phường Việt Hưng, TP.Hà Nội).
Chủ đầu tư hoạt động chủ yếu trong lĩnh vực xây dựng nhà để ở. Một số dự án đáng chú ý như Ruby Riverside, Platinum Long Biên, Ruby City CT1 - CT2 - CT3...
Thông tin nhanh dự án Platinum Long Biên Hà Nội
|
Dự án: Platinum Long Biên |
Tổng diện tích: 13.953m2 |
|
Vị trí: đường Cổ Linh, phường Long Biên, TP.Hà Nội |
Tổng vốn đầu tư: |
|
Loại hình: Căn hộ chung cư |
Năm khởi công: |
|
Chủ đầu tư: Công ty Cổ phần Đầu tư phát triển Nhà Thăng Long - Việt Nam |
Năm hoàn thành: |