Chi tiết dự án
Quy mô dự án Sarene Residence & Commercial Complex

Phối cảnh dự án Sarene Residence & Commercial Complex
|
Tổng diện tích |
16.319,6m² |
|
Tổng diện tích sàn |
95.309m² |
|
Quy mô xây dựng |
4 tháp cao 25 tầng 3 tầng hầm |
|
Số lượng sản phẩm |
Khoảng 560 căn hộ |
Quy mô dự án Sarene Residence & Commercial Complex

Vị trí dự án trong khu đô thị Sala
Sản phẩm tham khảo dự án Sarene Residence & Commercial Complex
Căn hộ 1 phòng ngủ
Diện tích: 56-62m2
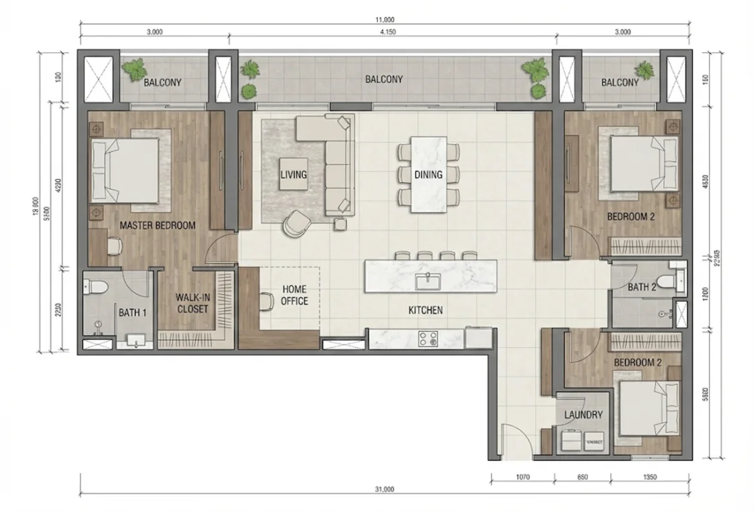
Căn hộ 2 phòng ngủ
Diện tích: 82-90m2

Layout căn hộ 2 phòng ngủ tham khảo
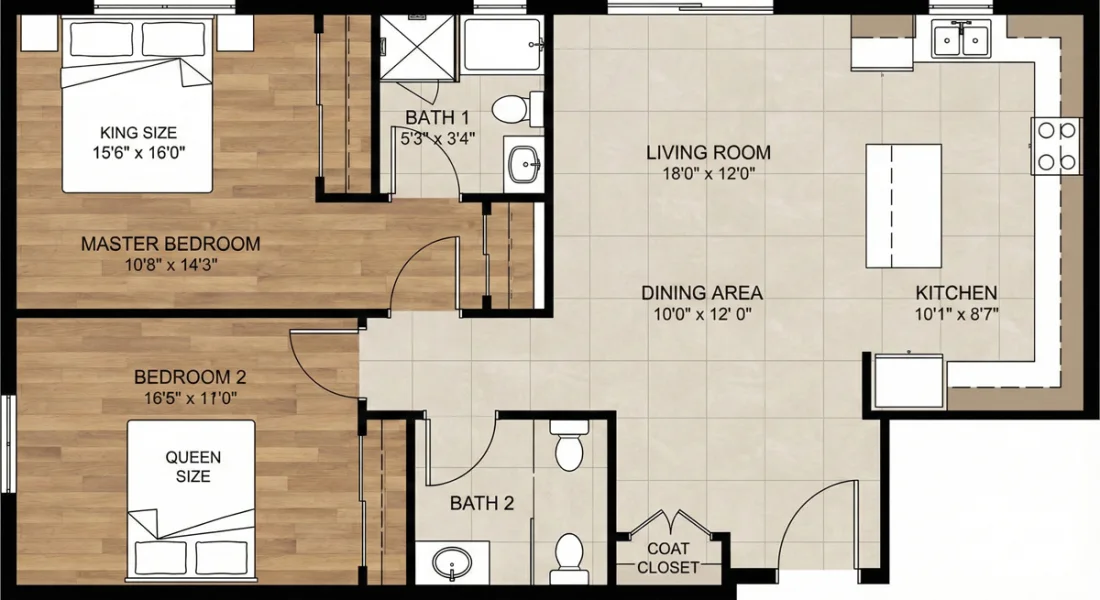
Căn hộ 3 phòng ngủ
Diện tích: 110-130m2

Layout căn hộ 3 phòng ngủ tham khảo
Tiện ích dự án Sarene Residence & Commercial Complex
- Hồ bơi tràn bờ
- Khu vực BBQ
- Sky Lounge
- Hệ thống phòng gym – spa – yoga
- Sân vườn sinh thái
- Bãi đậu xe thông minh
- Hệ thống an ninh 24/7…

Phối cảnh tiện ích tại dự án
Pháp lý dự án Sarene Residence & Commercial Complex
Sarene Residence & Commercial Complex nằm tại lô 6.8 phân khu phía Bắc – Khu đô thị Sala, được UBND TP.HCM phê duyệt đồ án điều chỉnh cục bộ quy hoạch phân khu tỷ lệ 1/2.000 tại Quyết định số 3165/QĐ-UBND ngày 19/6/2012.
Tiến độ dự án Sarene Residence & Commercial Complex
Dự án được khởi công ngày 13/01/2026.
Giá bán dự kiến: 200-250 triệu đồng/m2
Thông tin chủ đầu tư dự án Sarene Residence & Commercial Complex
Chủ đầu tư dự án là Công ty Cổ phần Đầu tư Địa ốc Đại Quang Minh được thành lập ngày 22/03/2011, địa chỉ trụ sở là số 10, đường Mai Chí Thọ, phường An Khánh, TP.HCM. Người đại diện pháp luật là ông Trần Đăng Khoa. Doanh nghiệp hoạt động trong lĩnh vực đầu tư phát triển hạ tầng kỹ thuật, đô thị và bất động sản.
Thông tin nhanh dự án Sarene Residence & Commercial Complex
|
Dự án: Sarene Residence & Commercial Complex |
Tổng diện tích: 16.319,6m² |
|
Vị trí: Phân khu phía Bắc - Sala, lô 6.8, số 2 đường số 13, phường An Khánh, TP.HCM |
Tổng vốn đầu tư: |
|
Loại hình: Căn hộ |
Năm khởi công: 13/01/2026 |
|
Chủ đầu tư: Công ty Cổ phần Đầu tư Địa ốc Đại Quang Minh |
Năm hoàn thành: |