Chi tiết dự án
Quy mô dự án Sun Elite City Quảng Ninh

Phối cảnh dự án Sun Elite City
| Tổng diện tích | 324ha |
| Quy mô xây dựng | 31 tòa căn hộ cùng khu thấp tầng Tòa tháp biểu tượng giữa biển |
Quy mô dự án Sun Elite City

Mặt bằng dự án Sun Elite City
Sản phẩm dự án Sun Elite City Quảng Ninh
Biệt thự

Phối cảnh biệt thự
Nhà liền kề/Shophouse

Phối cảnh shophouse
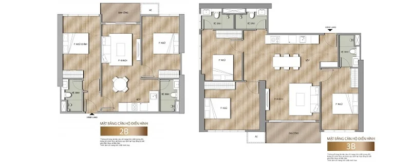
Căn hộ
Dự án cung cấp các loại hình căn hộ như căn hộ studio, căn hộ 1-2-3 phòng ngủ diện tích từ 28-101m2.
Ngoài ra còn có căn hộ dualkey, duplex & penthouse.


Thiết kế căn hộ studio, 1-2-3 phòng ngủ
Tiện ích dự án Sun Elite City Quảng Ninh
- Công viên Sun World Hạ Long
- Công viên Rồng
- Cụm kinh tế đêm
- Quảng trường sự kiện, lễ hội
- Bãi tắm riêng
- Hệ thống bể bơi
- Khu hoạt động thể thao
- Bến du thuyền
- Tuyến phố đi bộ
- Nhà hàng bên biển
- Khu ăn uống ngoài trời
- Đài phun nước
- Quảng trường biển
- Khu vui chơi trẻ em…


Phối cảnh tiện ích tại dự án
Pháp lý dự án Sun Elite City Quảng Ninh
Dự án Sun Elite City có tên pháp lý là Dự án công viên Đại Dương Hạ Long.
Ngày 15/5/2025, UBND TP.Hạ Long ban hành Quyết định số 4405/QĐ-UBND về việc phê duyệt Điều chỉnh Quy hoạch chi tiết tỷ lệ 1/500 Công viên Đại Dương Hạ Long.
Ngày 13/6/2025, UBND tỉnh Quảng Ninh ban hành Quyết định số 1969/QĐ-UBND về việc quyết định chấp thuận điều chỉnh chủ trương đầu tư.
Tiến độ dự án Sun Elite City Quảng Ninh
Cập nhật tháng 10/2025, dự án đang trong giai đoạn hoàn thiện hạ tầng, tiến hành thi công phân khu Sun Centro Town.
Giá bán tham khảo:
Căn hộ từ 2,4-8,8 tỷ đồng/căn
Shophouse từ 40-60 tỷ đồng/căn


Tiến độ dự án cập nhật tháng 10/2025
Thông tin chủ đầu tư dự án Sun Elite City Quảng Ninh
Chủ đầu tư dự án Sun Elite City là Công ty TNHH Mặt trời Hạ Long (thuộc Sun Group) hoạt động từ năm 2014, địa chỉ trụ sở là số 9 đường Hạ Long, phường Bãi Cháy, tỉnh Quảng Ninh. Người đại diện pháp luật là ông Nguyễn Chí Thành.
Doanh nghiệp hoạt động chính trong lĩnh vực hoạt động của các công viên vui chơi và công viên theo chủ đề.
Thông tin nhanh dự án Sun Elite City Quảng Ninh
| Dự án: Sun Elite City | Tổng diện tích: 324ha |
| Vị trí: Phường Bãi Cháy, tỉnh Quảng Ninh | Tổng vốn đầu tư: |
| Loại hình: Căn hộ, biệt thự, shophouse, nhà liền kề | Năm khởi công: |
| Chủ đầu tư: Công ty TNHH Mặt trời Hạ Long | Năm hoàn thành: |