Chi tiết dự án
Quy mô dự án The Keisho Long Biên

Phối cảnh dự án The Keisho Long Biên
| Tổng diện tích | 4.271m2 |
| Mật độ xây dựng | 40% |
| Diện tích xây dựng | 2.217m2 |
| Diện tích sàn | 44.976m2 |
| Quy mô xây dựng | 1 tòa chung cư cao 18 tầng nổi, 3 tầng hầm |
| Số lượng sản phẩm | 280 căn hộ |
| Tổng vốn đầu tư | Hơn 1.450 tỷ đồng |
Quy mô dự án The Keisho Long Biên
Sản phẩm dự án The Keisho Long Biên
Các căn hộ tại The Keisho có thiết kế đa dạng, từ 2 đến 3 phòng ngủ phù hợp với các gia đình đa thế hệ.
Căn hộ 2PN: 72-76m2
Căn hộ 2PN 1: 79-85m2
Căn hộ 3PN: 85-110m2

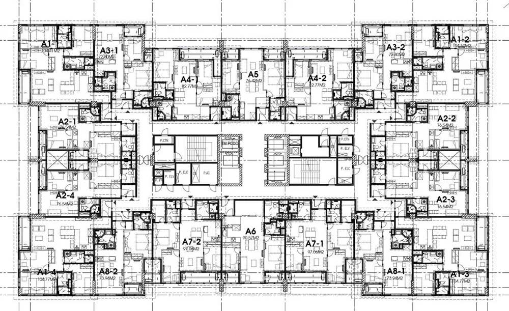
Mặt bằng tầng điển hình dự án The Keisho Long Biên

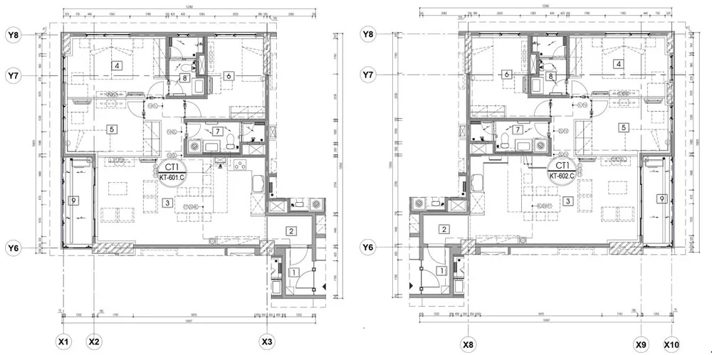
Thiết kế căn hộ tại The Keisho Long Biên
![]() | ![]() |
![]() | ![]() |
Thiết kế căn hộ dự án The Keisho Long Biên
Tiện ích dự án The Keisho Long Biên
- Khu sinh hoạt cộng đồng
- Khu thương mại dịch vụ
- Khu thể dục, thể thao ngoài trờI
- Công viên nội khu
- Bể bơi bốn mùa
- Khu vui chơi trẻ em
- Phòng tập gym
- Vườn nướng BBQ…

Phối cảnh tiện ích dự án The Keisho Long Biên
Pháp lý dự án The Keisho Long Biên
The Keisho Long Biên có tên pháp lý là Công trình Nhà ở cao tầng CT2 thuộc dự án Khu nhà ở và khu thể thao vui chơi giải trí Tư Đình.
Tiến độ dự án The Keisho Long Biên
Theo cập nhật gần nhất từ tháng 2/2025, dự án đang xây dựng phần tầng hầm.


Tiến độ dự án The Keisho Long Biên cập nhật từ tháng 2/2025 - Ảnh Diễn đàn Đô thị
Thông tin chủ đầu tư dự án The Keisho Long Biên
Dự án The Keisho Long Biên do Công ty CP đầu tư bất động sản CT2 làm chủ đầu tư; Đơn vị phát triển là Công ty TNHH Haseko Nhật Bản (Haseko Corporation); Tổng thầu dự án là Công ty CP Fecon; Nhà thầu thi công là Công ty CP xây dựng số 1 Hà Nội.
Công ty CP đầu tư bất động sản CT2 được thành lập ngày 03/02/2016, có địa chỉ đặt tại Tầng 21, Tòa nhà Capital Tower, 109 Trần Hưng Đạo, Phường Hoàn Kiếm, TP.Hà Nội.
Lĩnh vực hoạt động chính là Kinh doanh bất động sản, quyền sử dụng đất thuộc chủ sở hữu, chủ sử dụng hoặc đi thuê.
Công ty TNHH Haseko Nhật Bản được thành lập ngày 22/12/2014, có địa chỉ đặt tại Khu đất ký hiệu CT1, dự án Khu nhà ở Tư Đình, phường Long Biên, TP.Hà Nội.
Ngành nghề hoạt động chính là Xây dựng và kinh doanh tòa nhà căn hộ cho thuê.
Thông tin nhanh dự án The Keisho Long Biên
| Dự án: The Keisho | Tổng diện tích: 4.271m2 |
| Vị trí: đường Cổ Linh, phường Long Biên, TP.Hà Nội | Tổng vốn đầu tư: hơn 1.450 tỷ đồng |
| Loại hình: Căn hộ chung cư | Năm khởi công: 20/10/2023 |
| Chủ đầu tư: Công ty CP đầu tư bất động sản CT2 Đơn vị phát triển: Công ty TNHH Haseko Nhật Bản | Năm hoàn thành: |



