Chi tiết dự án
Quy mô dự án căn hộ Le Grand Jardin Hà Nội

Le Grand Jardin nằm trên tổng diện tích đất 5,8 ha, mật độ xây dựng 39%. Theo đó, khu đất No15 có 4 tòa nhà thương mại cao 15 tầng và 1 tầng hầm; khu đất No16 có 5 tòa căn hộ cao 15 tầng và 1 tầng hầm thông nhau khối đế.
Dự án Le Grand Jardin với tổng số 1.120 căn hộ, có diện tích dao động từ 49,87 m2 – 105,09 m2, được thiết kế từ 2 – 3 phòng ngủ.
|
Mặt bằng tổng thể dự án tổ hợp căn hộ, thương mại Le Grand Jardin |
|
|
Mặt bằng điển hình tòa G1 tại dự án Le Grand Jardin |
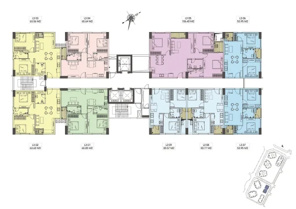
Mặt bằng điển hình tòa L3 tại dự án Le Grand Jardin |
Thông tin dự án căn hộ Le Grand Jardin
Tổng thể khu đô thị Sài Đồng (Long Biên) do Công ty Cổ phần Xây dựng số 3 Hà Nội (HANCO 3) làm chủ đầu tư và phân khu tổ hợp căn hộ Le Grand Jardin được phát triển bởi Tập đoàn BRG (BRG Group). Theo đó, khu đô thị Sài Đồng (Long Biên) được quy hoạch trên tổng diện tích đất 421.946 m2.
HANCO 3 được thành lập vào ngày 15/06/1976 và đã được chuyển đổi thành Công ty cổ phần vào ngày 30/03/2007 của UBND Thành phố Hà Nội. Các lĩnh vực hoạt động của công ty bao gồm: lập, quản lý và thực hiện các dự án đầu tư và xây dựng các công trình dân dụng; tư vấn, giám sát; sản xuất mua bán, xuất nhập khẩu, cho thuê trong ngành xây dựng; kinh doanh bất động sản;…
BRG Group là tập đoàn kinh tế dịch vụ đa ngành, hoạt động trong các lĩnh vực như: tài chính ngân hàng; đầu tư xây dựng, quy hoạch các dự án bất động sản; hệ thống các sân golf; khách sạn; dịch vụ du lịch giải trí; chuỗi siêu thị, thương mại và nhiều nhà máy sản xuất;...
Dự án được thi công bởi nhà thầu là Công ty Cổ phần Tập đoàn Xây dựng Hòa Bình (Hòa Bình Corporation) và Công ty Cổ phần West Green Design là đơn vị thiết kế cảnh quan.
Giá bán căn hộ được tham khảo tại dự án căn hộ Le Grand Jardin Hà Nội dao động từ 26 - 30 triệu/m2. Le Grand Jardin được khởi công xây dựng vào quý III/2018 và dự kiến bàn giao vào quý II/2020.
Thông tin nhanh dự án căn hộ Le Grand Jardin Hà Nội
|
Dự án: Le Grand Jardin |
Tổng diện tích: 5,8 ha |
|
Vị trí: Đường Huỳnh Văn Nghệ, phường Phúc Đồng, quận Long Biên, Hà Nội |
Tổng vốn đầu tư: |
|
Loại hình: Căn hộ |
Ngày khởi công: Quý III/2018 |
|
Chủ đầu tư: Công ty Cổ phần Xây dựng số 3 Hà Nội |
Năm hoàn thành: Quý II/2020 |


