Chi tiết dự án
Quy mô dự án UDIC EcoTower Hà Nội

Phối cảnh dự án UDIC EcoTower
|
Diện tích đất |
9.305 m2 |
|
Diện tích xây dựng |
3.722 m2 |
|
Mật độ xây dựng |
40% |
|
Tổng diện tích sàn xây dựng |
62.550 m2 |
|
Hệ số sử dụng đất |
6,84 lần |
|
Số lượng sản phẩm |
440 căn hộ |
|
Quy mô dân số |
1.230 người |
Quy mô dự án UDIC EcoTower

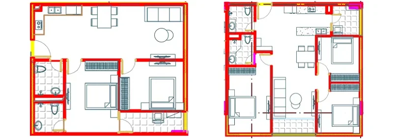
Mặt bằng tầng điển hình tại dự án
Sản phẩm dự án UDIC EcoTower Hà Nội
Căn hộ NOXH
Số lượng: 365 căn
- NOXH để bán: 255 căn, diện tích từ 70m2-76,24m2
- NOXH cho thuê mua: 37 căn, diện tích khoảng 70m2
- NOXH cho thuê: 73 căn, diện tích khoảng 70m2
Căn hộ thương mại
Số lượng: 75 căn
Diện tích: 76,24-89,82m2

Thiết kế căn hộ tham khảo tại dự án
Tiện ích dự án UDIC EcoTower Hà Nội
- Khu thể thao
- Khu vui chơi trẻ em
- Cửa hàng tiện ích 24/7
- Bãi đỗ xe
- Trung tâm mua sắm
- Phòng tập gym...

Phối cảnh tiện ích tại dự án
Pháp lý dự án UDIC EcoTower Hà Nội
Dự án UDIC EcoTower (hay NO1 Hạ Đình) có tên pháp lý là dự án nhà ở xã hội tại ô đất NO1 thuộc dự án khu đô thị mới Hạ Đình, xã Tân Triều, huyện Thanh Trì, TP.Hà Nội.
Ngày 14/3/2022, UBND TP.Hà Nội ban hành Quyết định số 905/QĐ-UBND về việc phê duyệt Điều chỉnh cục bộ Quy hoạch chi tiết Khu đô thị mới Hạ Đình, tỷ lệ 1/500 tại ô quy hoạch ký hiệu NO1, NO2, CC1, CC2, NT.
Theo thông tin từ chủ đầu tư, dự án đã được UBND TP.Hà Nội chấp thuận chủ trương đầu tư tại Quyết định số 2784/QĐ-UBND ngày 26/6/2020, điều chỉnh tại Quyết định số 4185/QĐ-UBND ngày 1/11/2022.
Tiến độ dự án UDIC EcoTower Hà Nội
Cập nhật tháng 6/2025, dự án đang triển khai thi công phần móng.
Giá bán dự kiến:
- Giá bán: khoảng 25 triệu đồng/m2
- Giá thuê: khoảng 150.000 đồng/m2/tháng
- Giá thuê mua: khoảng 390.000 đồng/m2/tháng

Tiến độ dự án cập nhật tháng 6/2025
Thông tin chủ đầu tư dự án UDIC EcoTower Hà Nội
Chủ đầu tư dự án UDIC EcoTower là Liên danh Tổng Công ty Đầu tư phát triển hạ tầng đô thị UDIC, Công ty Cổ phần Xây dựng lắp máy điện nước Hà Nội – Haweicco và Công ty Cổ phần Xây dựng và Phát triển nhà DAC Hà Nội.
Chủ đầu tư UDIC thành lập ngày 6/10/1971, địa chỉ trụ sở là số 27 đường Huỳnh Thúc Kháng, phường Láng , TP.Hà Nội. Lĩnh vực hoạt động chính là đầu tư - xây lắp - sản xuất vật liệu xây dựng và công nghiệp - tư vấn đầu tư xây dựng - xuất nhập khẩu, dịch vụ... Một số dự án tiêu biểu như Unimax, UDIC Riverside 1...
Haweicco thành lập năm 1967, địa chỉ trụ sở là số 59 Thông Phong, phường Đống Đa, TP.Hà Nội. Lĩnh vực hoạt động chính là bất động sản và xây dựng.
Công ty Cổ phần Xây dựng và Phát triển nhà DAC Hà Nội thành lập năm 2007, địa chỉ trụ sở là phường Từ Liêm, TP.Hà Nội. Lĩnh vực hoạt động chính là thi công nội thất, nhà ở, kiến trúc, bất động sản...
Thông tin nhanh dự án UDIC EcoTower Hà Nội
|
Dự án: UDIC EcoTower |
Tổng diện tích: 9.305 m2 |
|
Vị trí: ô đất ký hiệu NO1, khu đô thị mới Hạ Đình, phường Định Công, TP.Hà Nội |
Tổng vốn đầu tư: |
|
Loại hình: Nhà ở xã hội |
Năm khởi công: |
|
Chủ đầu tư: Liên danh Tổng Công ty Đầu tư phát triển hạ tầng đô thị UDIC, Công ty Cổ phần Xây dựng lắp máy điện nước Hà Nội – Haweicco và Công ty Cổ phần Xây dựng và Phát triển nhà DAC Hà Nội |
Năm hoàn thành: |