Quy mô dự án Vinaconex Móng Cái Quảng Ninh

Vinaconex Móng Cái có tổng diện tích quy hoạch 488.004,8 m2, trong đó đất ở chiếm 113.946,9 m2, đất thương mại dịch vụ chiếm 41.266,5 m2, đất giao thông, hạ tầng kỹ thuật, đất khác chiếm 332.791,4 m2. Dự án có tổng mức đầu tư khoảng 2.256 tỷ đồng.

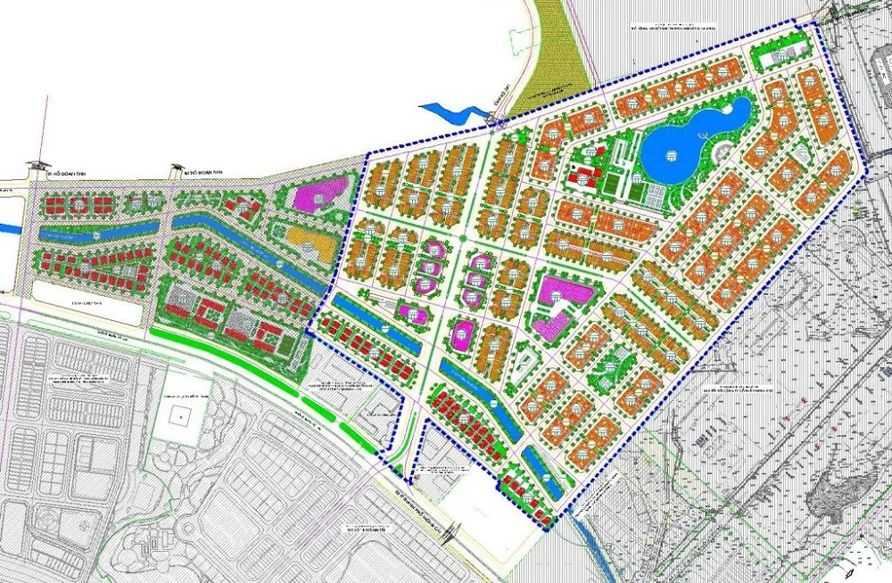
Mặt bằng dự án Vinaconex Móng Cái
Các sản phẩm tại dự án Vinaconex Móng Cái dự kiến ban đầu bao gồm: 248 căn liền kề, 252 căn shophouse, 137 căn biệt thự.


Phối cảnh nhà phố tại dự án Vinaconex Móng Cái
Khu đô thị Vinaconex Móng Cái sở hữu những tiện ích nội khu như: liền kề, biệt thự, shophouse, khu cao tầng, văn phòng, trung tâm thương mại, bãi đỗ xe, trường học, nhà văn hóa, khu sinh hoạt cộng đồng và công viên cây xanh, trung tâm thương mại, siêu thị, trường mẫu giáo, nhà văn hóa…
Thông tin dự án Vinaconex Móng Cái Quảng Ninh
Chủ đầu tư dự án Vinaconex Móng Cái Quảng Ninh là liên danh Tổng công ty Cổ phần Xuất nhập khẩu và Xây dựng Việt Nam (Vinaconex) và Công ty Cổ phần Phát triển Đầu tư Phúc Khánh Việt Nam.
Tổng công ty Cổ phần Xuất nhập khẩu và Xây dựng Việt Nam được thành lập ngày 01/12/2006, đặt trụ sở tại tòa nhà Vinaconex, 34 Láng Hạ, phường Láng Hạ, quận Đống Đa, thành phố Hà Nội. Hoạt động trong các lĩnh vực như kinh doanh bất động sản, quyền sử dụng đất thuộc chủ sở hữu, chủ sử dụng hoặc đi thuê.
Công ty Cổ phần Phát triển Đầu tư Phúc Khánh Việt Nam thành lập ngày 22/09/2017, đặt trụ sở tại D21 Khu biệt thự vườn Thủ Đức, đường số 3, khu phố 5, phường Hiệp Bình Phước, thành phố Thủ Đức, thành phố Hồ Chí Minh. Hoạt động trong các ngành nghề kinh doanh bất động sản và tư vấn môi giới bất động sản.
Theo tìm hiểu, dự án Vinaconex Móng Cái có tên pháp lý là Khu đô thị đại lộ Hòa Bình kéo dài tại phường Hải Hòa, thành phố Móng Cái. Nằm trong quy hoạch chi tiết tỷ lệ 1/500 được Ban Quản lý Khu kinh tế tỉnh Quảng Ninh phê duyệt tại quyết định số 234 ngày 10/11/2017.
Dự án được UBND tỉnh Quảng Ninh chấp thuận chủ trương đầu tư vào đầu năm 2019. Đến tháng 4/2019, Vinaconex được lựa chọn làm chủ đầu tư.
Theo phê duyệt, tổng diện tích sử dụng đất của dự án là 48,8 ha, trong đó đất khu dân cư hiện trạng 38.218 m2 và đất khu đô thị mới 449.786,8 m2. Dự kiến tổng mức đầu tư của dự án khoảng 1.410 tỷ đồng (chưa bao gồm chi phí giải phóng mặt bằng). Thời gian thực hiện dự án từ năm 2019 - 2022.
Đến tháng 5, UBND tỉnh Quảng Ninh đã ra quyết định điều chỉnh chủ trương đầu tư dự án này. Tổng số nhà ở là 637 căn với 252 nhà phố thương mại, 248 nhà ở liên kế, 137 căn biệt thự. Liên danh Vinaconex và Phúc Khánh Việt Nam là chủ đầu tư dự án trên với tổng mức đầu tư khoảng 2.256 tỷ đồng.
Tháng 06/2022, UBND tỉnh Quảng Ninh ban hành quyết định chuyển mục đích sử dụng đất, giao đất, cho thuê đất (đợt 1) cho liên danh Vinaconex và Phúc Khánh Việt Nam để thực hiện dự án Khu đô thị đại lộ Hòa Bình kéo dài tại phường Hải Hòa, thành phố Móng Cái với diện tích hơn 23 ha.
Thông tin nhanh dự án Vinaconex Móng Cái Quảng Ninh
| Dự án: Vinaconex Móng Cái | Tổng diện tích: 488.004,8 m2 |
| Vị trí: Phường Hải Yên, thành phố Móng Cái, tỉnh Quảng Ninh | Tổng vốn đầu tư: 2.256 tỷ đồng |
| Loại hình: Nhà phố, biệt thự | Năm khởi công: |
| Chủ đầu tư: Liên danh Tổng công ty Cổ phần Xuất nhập khẩu và Xây dựng Việt Nam (Vinaconex) Công ty Cổ phần Phát triển Đầu tư Phúc Khánh Việt Nam. | Năm hoàn thành: |
Mạnh Dũng