Quy mô dự án Will State - Khu đô thị Dương Nội Hà Nội
Dự án Biệt thự Will State có tổng diện tích xây dựng 11,3 ha; mật độ xây dựng 60%, được quy hoạch chia làm 3 phân khu:
- Phân khu Will Shine xây dựng với loại hình biệt thự thương mại, shophouse, quảng trường trung tâm.
- Phân khu Will You và Will Link xây dựng với loại hình biệt thự để ở.
Phối cảnh các phân khu dự án Biệt thự Will State
Dự án Biệt thự Will State có quy mô 653 lô, trong đó biệt thự 538 lô và shopvilla 115 lô; diện tích các lô đất từ 170 m2 - 425 m2, thiết kế cao 3 tầng 1 tum, mỗi căn được bố trí từ 4 - 5 phòng ngủ.

Mặt bằng phân lô dự án Biệt thự Will State khu B Dương Nội
Lô đất Biệt thự mẫu G37a có diện tích 377,13 m2; tổng diện tích xây dựng 771,9 m2; diện tích sân vườn 186,63 m2; xây dựng cao 3 tầng:
- Tầng 1 diện tích 190,5 m2.
- Tầng 2 diện tích 201,2 m2.
- Tầng 3 diện tích 197,5 m2.
- Tầng tum diện tích 182,7m2.

Thiết kế mẫu 1 Biệt thự Will State khu B Dương Nội
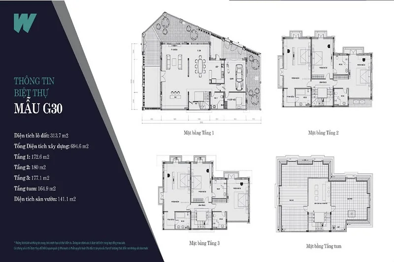
Lô đất biệt thự mẫu G30 có diện tích 313,7 m2; tổng diện tích xây dựng 694,6 m2; diện tích sân vườn 141,1 m2; xây dựng cao 3 tầng:
- Tầng 1 có diện tích 172,6 m2.
- Tầng 2 diện tích 180 m2.
- Tầng 3 diện tích 177,1 m2.
- Tầng tum diện tích 161,9 m2.

Thiết kế mẫu 2 Biệt thự Will State khu B Dương Nội
Lô đất biệt thự mẫu M4-1 có diện tích 212,5 m2; tổng diện tích xây dựng 135,5 m2; diện tích sân vườn 98,7 m2; xây dựng cao 3 tầng:
- Tầng 1 có diện tích 113,8 m2.
- Tầng 2 diện tích 109,6 m2.
- Tầng 3 diện tích 107,6 m2.
- Tầng tum diện tích 104,5 m2.

Thiết kế mẫu 3 Biệt thự Will State khu B Dương Nội
Tiện ích nội khu Biệt thự Will State: Bệnh viện quốc tế Nam Cường; trường mầm non Quốc tế, trường Lê Quý Đôn; công viên cảnh quan; bể bơi 4 mùa; sân tennis, cầu lông; khu vui chơi trẻ em; an ninh 3 lớp 24/24.

Phối cảnh Shop Villas Will State khu B Dương Nội – Tập đoàn Nam Cường
Tiện ích ngoại khu Biệt thự Will State: Cách Đại Học Thành Tây 500 m; cách THPT Nguyễn Huệ 1 km; cách Ga tàu điện trên cao 1 km; cách Aeon Mall 1 km; cách Bệnh viện quốc tế Nam Cường 1,7 km; cách thiên đường Bảo Sơn 2,5 km; cách bến xe Yên Nghĩa 3,2 km; cách viện Quân Y 103 khoảng 5 km; cách Trung tâm hội nghị quốc gia 6,8 km.
Thông tin dự án Will State - Khu đô thị Dương Nội Hà Nội
Dự án Biệt thự Will State do Tập đoàn Nam Cường làm chủ đầu tư; có trụ sở tại Km4 Đường Lê Văn Lương kéo dài, phường Dương Nội, quận Hà Đông, thành phố Hà Nội.
Tập đoàn Nam Cường hoạt động ngày 08/07/2009, Công ty do ông Trần Văn Nghĩa làm người đại diện pháp luật, công ty hoạt động chính trong các lĩnh vực kinh doanh bất động sản, quyền sử dụng đất thuộc chủ sở hữu, chủ sử dụng hoặc đi thuê; tư vấn, môi giới, đấu giá bất động sản, đấu giá quyền sử dụng đất…
Mùa xuân năm 1984, với tên gọi ban đầu là Tổ hợp dịch vụ vận tải Xuân Thủy, hoạt động trong lĩnh vực kinh doanh vận tải thủy nội địa các mặt hàng phân bón, xi măng, sắt thép phục vụ cho nhu cầu các tỉnh miền Bắc – Việt Nam.
Sau 10 năm hoạt động, Tổ hợp dịch vụ vận tải Xuân Thủy được đổi tên thành Công ty TNHH Nam Cường vào năm 1994.
Năm 1996, công ty được đổi tên thành Công ty TNHH Thương mại và Du lịch Nam Cường.
Năm 1998 Công ty đổi tên thành Công ty Thương mại và Du lịch Nam Cường.
Từ năm 2001, Công ty Thương mại – Du lịch Nam Cường tăng số vốn điều lệ lên 1.111 tỷ đồng và hoạt động theo giấy phép đăng ký số 07020000148 do Sở Kế hoạch Đầu tư Tỉnh Nam Định cấp.
Các sản phẩm tại dự án Biệt thự Will State có giá bán trên thị trường từ 37 triệu đồng/m2.
Thông tin nhanh dự án Will State - Khu đô thị Dương Nội Hà Nội
| Dự án: Biệt thự Will State | Tổng diện tích: 11,3 ha |
| Vị trí: Phân khu B của khu đô thị Dương Nội, quận Hà Đông, thành phố Hà Nội | Tổng vốn đầu tư: |
| Loại hình: Biệt thự, shophouse | Ngày khởi công: |
| Chủ đầu tư: Tập đoàn Nam Cường | Năm hoàn thành: |
Quốc Tấn